Annonces immobilières

Toutes les annonces

Réseau des notaires

Nouvelle recherche Cette annonce m'intéresse

Terrain à bâtir dans une nouvelle résidence

Prix : 64 803,00 
Dont honoraires 5 373,00 € TTC inclus (9,04 %) à la charge de l'acquéreur, soit 59 430 € hors honoraires.
Type de bien : Terrain
Surface : 513,00m²
Localité : Rue (80120)
Référence : 62159-163

Description du bien

Terrain à bâtir au sein d'une nouvelle résidence au coeur de RUE.
RUE est une commune agréable située à quelques kilomètres de St-Valéry sur Somme, Quend plage, Fort Mahon...
Toutes les commodités sont disponibles dans cette petite ville.

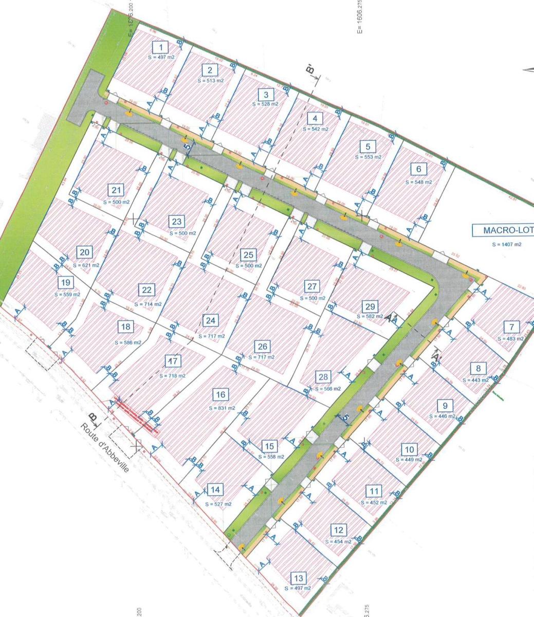
Terrains disponibles :
1. Surface : 497 m² prix 54 670,00 € / vendu
2. Surface : 513 m² prix 64 802,90 €
3. Surface : 528 m² prix 66 502,40 €
4. Surface : 542 m² prix 68 088,60 €
5. Surface : 553 m² prix 69 334,90 €
6. Surface : 548 m² prix 68 768,40 €
7. Surface : 483 m² prix 63 891,35 €
8. Surface : 443 m² prix 59 153,35 €
9. Surface : 446 m² prix 59 508,70 €
10. Surface : 449 m² prix 54 630,00 € / vendu
11. Surface : 452 m² prix 60 219,40 €
12. Surface : 454 m² prix 60 456,30 €
13. Surface : 497 m² prix 65 549,65 €
14. Surface : 527 m² prix 66 389,10 €
15. Surface : 558 m² prix 69 901,40 €
16. Surface : 831 m² prix 100 832,30 €
17. Surface : 718 m² prix 81 980,00 € / vendu
18. Surface : 586 m² prix 73 073,80 €
19. Surface : 559 m² prix 70 014,70 €
20. Surface : 621 m² prix 80 237,45 €
21. Surface : 500 m² prix 68 480,00 €
22. Surface : 714 m² prix 87 576,20 €
23. Surface : 500 m² prix 68 480,00 €
24. Surface : 717 m² prix 87 916,10 €
25. Surface : 500 m² prix 63 000,00 € / vendu
26. Surface : 717 m² prix 87 916,10 €
27. Surface : 500 m² prix 64 000,00 € / vendu
28. Surface : 556 m² prix 69 674,80 €
29. Surface : 582 m² prix 78 615,20 €

Mandat

Téléphone mandataire : +33321162121
E-mail mandataire : Veuillez utiliser le formulaire de contact ci-dessous ...
Négociateur : François BOURGOIS

Cette annonce m'intéresse

Captcha
* Les champs suivis d'un astérisque sont obligatoires.

Conformément à la loi n°78-17 du 6 janvier 1978 modifiée relative à l'informatique, aux fichiers et aux libertés, et au règlement européen 2016/679, dit Règlement Général sur la Protection des Données (RGPD), vous disposez d'un droit d'accès, de rectification, de suppression des informations qui vous concernent.
Navigateur non pris en charge

Le navigateur Internet Explorer que vous utilisez actuellement ne permet pas d'afficher ce site web correctement.

Nous vous conseillons de télécharger et d'utiliser un navigateur plus récent et sûr tel que Google Chrome, Microsoft Edge, Mozilla Firefox, ou Safari (pour Mac) par exemple.
OK