Nouvelle recherche
Cette annonce m'intéresse
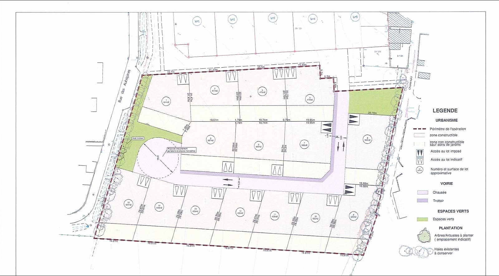
A vendre : Terrain - 433m² - Coudeville-sur-Mer (50290)
Prix :
73 402,00 €
Honoraires inclus à la charge du vendeur.
Type de bien :
Terrain
Surface :
433,00m²
Localité :
Coudeville-sur-Mer (50290)
Référence :
50026-980744-50026
Description du bien
Dans le bourg, terrains en lotissement pour une superficie de 433 m² à 582 m².
4 lots viabilisés, prix allant de 73.402,16 € à 90.762,00 €
les honoraires de négociation sont à la charge du vendeur.
Descriptif des lots :
LOT 7 : superficie 506 m² - prix 78.936,00 €
LOT 9 : superficie 525 m² - prix 88.998,00 €
LOT 10 : superficie 433 m² - prix 73.402,16 €
LOT 11 : superficie 433 m² - prix 73.402,16 €
Les terrains sont libres de constructeur, l'étude vous propose en collaboration avec le constructeur ' Maisons Le Masson' deux projets.
Pour plus de renseignements ou demande de visite veuillez contacter Marina PAUL au 06.07.90.32.75 ou à l'adresse suivante marina.paul.50026@notaires.fr Les informations sur les risques auxquels ce bien est exposé sont disponibles sur le site Géorisques : georisques.gouv.fr
Caractéristiques
| Situation locative : |
libre |
Mandat
| Téléphone mandataire : |
+33607903275 |
| E-mail mandataire : |
Veuillez utiliser le formulaire de contact ci-dessous ... |
| Négociateur : |
Marina PAUL |