Annonces immobilières

Toutes les annonces

Réseau des notaires

Nouvelle recherche Cette annonce m'intéresse

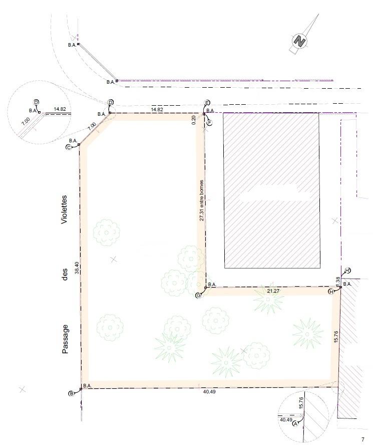
Terrain constructible d'une superficie de 1 175 m² en "L"

Prix : 136 500,00 
Dont honoraires 6 500,00 € TTC inclus (5,00 %) à la charge de l'acquéreur, soit 130 000 € hors honoraires.
Type de bien : Terrain
Surface : 1 175,00m²
Localité : Chaingy (45380)
Référence : 45031-53

Description du bien

Situé dans un secteur calme et agréable, à 2 min à pied du centre bourg, venez découvrir ce terrain constructible d'une superficie de 1 175 m² en "L" avec une façade de 19 m x 43 m de profondeur.
Le terrain est non viabilisé, libre constructeur et dispose de 400 m² de surface de plancher. À visiter sans attendre !

Pour tout renseignement, contacter M. JOLY Arnaud, Responsable du Service Transaction de l'Office Notarial
Les informations sur les risques auxquels ce bien est exposé sont disponibles sur le site Géorisques : www.georisques.gouv.fr

Mandat

Téléphone mandataire : +33238888288
E-mail mandataire : Veuillez utiliser le formulaire de contact ci-dessous ...
Négociateur : Arnaud JOLY

Cette annonce m'intéresse

Captcha
* Les champs suivis d'un astérisque sont obligatoires.

Conformément à la loi n°78-17 du 6 janvier 1978 modifiée relative à l'informatique, aux fichiers et aux libertés, et au règlement européen 2016/679, dit Règlement Général sur la Protection des Données (RGPD), vous disposez d'un droit d'accès, de rectification, de suppression des informations qui vous concernent.
Navigateur non pris en charge

Le navigateur Internet Explorer que vous utilisez actuellement ne permet pas d'afficher ce site web correctement.

Nous vous conseillons de télécharger et d'utiliser un navigateur plus récent et sûr tel que Google Chrome, Microsoft Edge, Mozilla Firefox, ou Safari (pour Mac) par exemple.
OK