Annonces immobilières

Toutes les annonces

Réseau des notaires

Nouvelle recherche Cette annonce m'intéresse

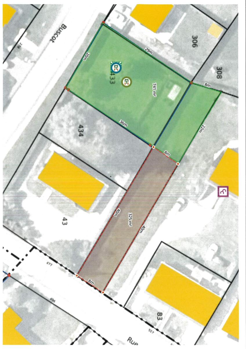
Proche du centre ville, PARCELLE située à ARDRES, 1056m2, deuxième rang

Prix : 101 840,00 
Dont honoraires 6 840,00 € TTC inclus (7,20 %) à la charge de l'acquéreur, soit 95 000 € hors honoraires.
Type de bien : Terrain
Surface : 1 056,00m²
Localité : Ardres (62610)
Référence : 62100-3671

Description du bien

Proche du centre ville, belle parcelle de terrain à bâtir d'une surface totale de 1056m2. Chemin d'accès de 8m de large sur 40m de profondeur puis parcelle d'environ 20m par 36m. Tout à l'égout existant et boites de branchements eaux usées et pluviales déjà installées. Installation des autres réseaux à prévoir et aménagement du chemin d'accès.

Mandat

Téléphone mandataire : +33675383920
E-mail mandataire : Veuillez utiliser le formulaire de contact ci-dessous ...
Négociateur : Gaëtan CUVELIER

Cette annonce m'intéresse

Captcha
* Les champs suivis d'un astérisque sont obligatoires.

Conformément à la loi n°78-17 du 6 janvier 1978 modifiée relative à l'informatique, aux fichiers et aux libertés, et au règlement européen 2016/679, dit Règlement Général sur la Protection des Données (RGPD), vous disposez d'un droit d'accès, de rectification, de suppression des informations qui vous concernent.
Navigateur non pris en charge

Le navigateur Internet Explorer que vous utilisez actuellement ne permet pas d'afficher ce site web correctement.

Nous vous conseillons de télécharger et d'utiliser un navigateur plus récent et sûr tel que Google Chrome, Microsoft Edge, Mozilla Firefox, ou Safari (pour Mac) par exemple.
OK