Annonces immobilières

Toutes les annonces

Réseau des notaires

Nouvelle recherche Cette annonce m'intéresse

Propriété d'env. 209m² - 5-6 chambres - Possibilité activ. Lib

Prix : 654 600,00 
Dont honoraires 24 600,00 € TTC inclus (3,90 %) à la charge de l'acquéreur, soit 630 000 € hors honoraires.
Type de bien : Maison
Pièces : 9 pièces / 6 chambres
Surface : 209,00m²
Localité : Savonnières (37510)
Référence : 37008-8

Description du bien

SAVONNIERES - à 15min de TOURS Centre

Longère de caractère entièrement rénovée avec grange aménagée attenante. Les deux bâtiments communiquent pour créer un espace de vie singulier d'environ 209m², alliant authenticité et volumes

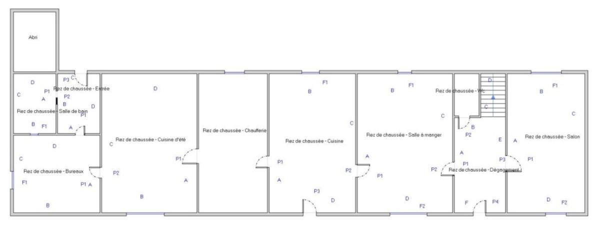
- Longère -
- Au rez-de-chaussée : entrée, salon, salle à manger, cuisine aménagée équipée, buanderie/local technique, WC
- au premier étage : palier, chambre avec salle de bains attenante, dégagement, 3 chambres, salle de douche, WC

- Grange aménagée -
- Au rez-de-chaussée : entrée, salle de douche PMR avec WC, Bureau/chambre, séjour avec espace cuisine
- Au 1er étage : Mezzanine, filet suspendu, pièce ouverte, chambre avec salle d'eau attenante et WC

- Annexes : dépendances - terrasse - jardin clos et paysagé

Aout majeur : la distribution des espaces permet d'envisager l'exercice d'une activité libérale grâce à un accès indépendant, des WC conformes aux normes PMR et un parking privatif.

CARACTÉRISTIQUES TECHNIQUES
- Terrain : 1592m²
– Exposition : SUD
– Eau chaude sanitaire : chauffe-eau thermodynamique 270l (2018)
– Chauffage : chaudière gaz à condensation (2018)
– Menuiseries : double vitrage bois récent
– Toiture : ardoise naturelle

Diagnostique de Performance Energétique :
Consommation : 107 kWh / m² / an, Classe C
Émissions : 25 kg CO2 / m² / an, Classe C
Les informations sur les risques auxquels ce bien est exposé sont disponibles sur le site Géorisques : http://www.georisques.gouv.fr.

Performance énergétique

logement extrêmement consommateur d’énergie logement très performant passoire énergétique kg CO /m².an ² consommation (énergie primaire) émissions kWh/m².an 107 25 *
25 kg CO /m².an ² * Dont émissions de gaz à effet de serre peu d’émissions de CO émissions de CO très importantes ² ²

Montant des dépenses théoriques annuelles d’énergie

Coût annuel (min) : 2600.00 €
Coût annuel (max) : 23540.00 €
Année de référence : 2021

Caractéristiques

Nombre d'étages : 1
État général : Bon
Exposition : sud
Situation locative : libre
Cuisine : oui
Nombre de salles de bain : 1
Terrasse : oui
Parking : oui

Mandat

Téléphone mandataire : +33674434500
E-mail mandataire : Veuillez utiliser le formulaire de contact ci-dessous ...
Négociateur : Jérémie MASSONNET

Cette annonce m'intéresse

Captcha
* Les champs suivis d'un astérisque sont obligatoires.

Conformément à la loi n°78-17 du 6 janvier 1978 modifiée relative à l'informatique, aux fichiers et aux libertés, et au règlement européen 2016/679, dit Règlement Général sur la Protection des Données (RGPD), vous disposez d'un droit d'accès, de rectification, de suppression des informations qui vous concernent.
Navigateur non pris en charge

Le navigateur Internet Explorer que vous utilisez actuellement ne permet pas d'afficher ce site web correctement.

Nous vous conseillons de télécharger et d'utiliser un navigateur plus récent et sûr tel que Google Chrome, Microsoft Edge, Mozilla Firefox, ou Safari (pour Mac) par exemple.
OK