Annonces immobilières

Toutes les annonces

Réseau des notaires

Nouvelle recherche Cette annonce m'intéresse

Maison individuelle - MARCILLY-EN-BEAUCE

Prix : 519 500,00 
Dont honoraires 19 500,00 € TTC inclus (3,90 %) à la charge de l'acquéreur, soit 500 000 € hors honoraires.
Type de bien : Maison
Pièces : 7 pièces / 6 chambres
Surface : 247,00m²
Terrain : 4 931,00m²
Localité : Marcilly-en-Beauce (41100)
Référence : 41048-755

Description du bien

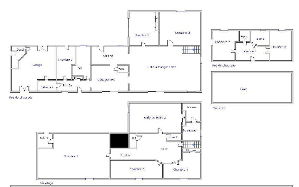
Une maison à usage d'habitation comprenant : - au rez-de-chaussée : entrée, vestibule, un w.c., une cuisine, une salle à manger - salon, trois chambres dont une avec un insert, une salle de bains, un cellier, un garage ; - à l'étage : un palier desservant trois chambres dont une avec salle d'eau, une buanderie, un w.c., une salle de bains. Cour fermée devant la maison permettant de stationner jusqu'à cinq véhicules. Une grande terrasse côté jardin. Une dépendance comprenant deux chambres, une cuisine, une salle d'eau et un w.c. Cave en-dessous. Un grand jardin avec une piscine.  Les informations sur les risques auxquels ce bien est exposé sont disponibles sur le site Géorisques : www.georisques.gouv.fr

Performance énergétique

logement extrêmement consommateur d’énergie logement très performant passoire énergétique kg CO /m².an ² consommation (énergie primaire) émissions kWh/m².an 253 8 *
8 kg CO /m².an ² * Dont émissions de gaz à effet de serre peu d’émissions de CO émissions de CO très importantes ² ²

Caractéristiques

Nombre de salles de bain : 1
Terrasse : oui
Parking : oui

Commodités

Cave : oui
Piscine : oui

Mandat

Téléphone mandataire : +33254800758
E-mail mandataire : Veuillez utiliser le formulaire de contact ci-dessous ...
Négociateur : Ymeine PRAMPART

Cette annonce m'intéresse

Captcha
* Les champs suivis d'un astérisque sont obligatoires.

Conformément à la loi n°78-17 du 6 janvier 1978 modifiée relative à l'informatique, aux fichiers et aux libertés, et au règlement européen 2016/679, dit Règlement Général sur la Protection des Données (RGPD), vous disposez d'un droit d'accès, de rectification, de suppression des informations qui vous concernent.
Navigateur non pris en charge

Le navigateur Internet Explorer que vous utilisez actuellement ne permet pas d'afficher ce site web correctement.

Nous vous conseillons de télécharger et d'utiliser un navigateur plus récent et sûr tel que Google Chrome, Microsoft Edge, Mozilla Firefox, ou Safari (pour Mac) par exemple.
OK