Nouvelle recherche
Cette annonce m'intéresse
Terrain prêt à construire – permis accordé – gain de temps et de budget
Prix :
100 000,00 €
Dont honoraires 6 000,00 € TTC inclus (6,38 %) à la charge de l'acquéreur, soit 94 000 € hors honoraires.
Type de bien :
Maison
Pièces :
6 pièces / 4 chambres
Surface :
909,00m²
Localité :
Peumerit (29710)
Référence :
29015-563
Description du bien
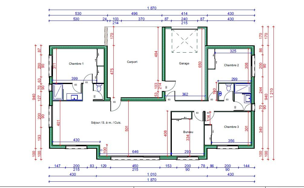
Situé entre Pouldreuzic et Plonéour-Lanvern, à moins de 2 km de Plovan et à seulement 6 km des plages, ce terrain plat de 909 m² offre un cadre calme et agréable, tout en restant proche des commodités.
Un permis de construire est déjà obtenu et les travaux ont été démarrés :
la dalle béton sur vide sanitaire est réalisée, ainsi que les évacuations, ce qui représente un gain de temps considérable et une économie immédiate pour un futur acquéreur.
Le projet actuel prévoit une maison de plain-pied d’environ 120 m², comprenant :
- une pièce de vie de 50 m²,
- 3 chambres dont une suite parentale,
- un bureau,
- 2 salles d’eau, 2 WC,
- un carport (31 m²) et un garage (23,5 m²).
Mandat
| Téléphone mandataire : |
+33298545817 |
| E-mail mandataire : |
Veuillez utiliser le formulaire de contact ci-dessous ... |
| Négociateur : |
Mathilde POIRIER |