Annonces immobilières

Toutes les annonces

Réseau des notaires

Nouvelle recherche Cette annonce m'intéresse

Maison 211 m² LECLUSE

Prix : 225 000,00 
Honoraires inclus à la charge du vendeur.
Type de bien : Maison
Pièces : 6 pièces / 5 chambres
Surface : 211,00m²
Localité : Lécluse (59259)
Référence : 62017-3220

Description du bien

++ Exclusivité Etude ++

Maison à vendre à LECLUSE (59259 Nord).

Cette maison, rénovée intérieurement, se compose sur environ 211 m² habitables comme suit :
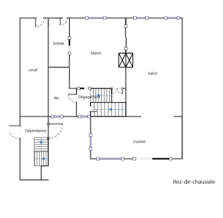
- rez-de-chaussée :
* entrée sur couloir ;
* séjour (17,8 m²) ouvert sur salon (25,05 m²) donnant sur cuisine équipée avec son espace repas (18,5 m²) ;
* dégagement vers étage / cave ;
* WC / buanderie ;

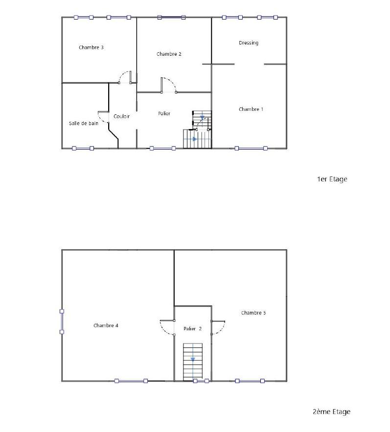
- 1er étage : palier desservant :
* 3 chambres dont une avec dressing : 18,2 m² + 7,8 m² de dressing / 11,47 m² / 14,5 m² ;
* salle de bain avec WC (13,2 m²) :

- 2ème étage : palier desservant deux grandes chambres (19,8 m² / 25,6 m²) ;

- cave.

La maison est actuellement :
- chauffée par poêle à pellets pour le rdc + radiateurs électriques pour étages ;
- équipée de menuiseries en PVC/aluminium double vitrage (avec volets, électriques pour partie) ;
- raccordée au tout à l'égout.

A l'extérieur, la maison dispose :
- d'un jardin clos à l'arrière (pas de passage privatif sur le côté de la maison) ;
- d'une ancienne petite dépendance à rénover ;
- d'un local, attenant à la maison mais avec son entrée indépendante, loué par bail commercial, moyennant un loyer de 100 € / mois + 60 € de provision sur charges (eau et électricité).

Des travaux de finitions extérieures sont à prévoir, en particulier pour la façade arrière / terrasse / jardin.

Taxe foncière 2025 : 1.486 €.

Le tout sur et avec 467 m² de terrain.

Informations relatives au diagnostic de performance énergétique : Consommations énergétiques (CE) Classe D indice 196 kWhEP/m²/an et émissions de gaz à effet de serre (GES) Classe B indice 6 kgéqCO2/m²/an.
Les informations sur les risques auxquels ce bien est exposé sont disponibles sur le site Géorisques : www.georisques.gouv.fr

Prix de vente : 225.000 € (honoraire de négociation à la charge du vendeur), provision sur frais d'acte de vente : 18.500 €.

Secteur MARQUION, BARALLE, BUISSY, BOURLON, CAGNICOURT, LAGNICOURT, BAPAUME, BULLECOURT, DURY, VIS-EN-ARTOIS, CROISILLES, ECOUST-SAINT-MEIN, PRONVILLE, INCHY-EN-ARTOIS, MOEUVRES, LAGNICOURT-MARCEL, OISY-LE-VERGER, BUGNICOURT, CANTIN, GOEULZIN, FERIN, LECLUSE, BRUNEMONT, HAMEL, TORTEQUESNE, ESTREES, BELLONNE, MORCHIES, VAULX-VRAUCOURT, CHERISY, DOIGNIES, HERMIES, BERTINCOURT, SAUDEMONT, RUMAUCOURT, ECOURT-SAINT-QUENTIN, SAUCHY-LESTREE, SAUCHY-CAUCHY, EPINOY, AUBIGNY-AU-BAC, BRUNEMONT, AUBENCHEUL-AU-BAC, SAILLY-LEZ-CAMBRAI, NEUVILLE-SAINT-REMY, RAILLENCOURT-SAINT-OLLE, HAYNECOURT, SANCOURT, ABANCOURT, FRESSIES, FRESSAIN, MORY, ARRAS, CAMBRAI, GOUZEAUCOURT, HAVRINCOURT, ARLEUX, PALLUEL, ARRAS, DOUAI, CAMBRAI... E-Valley, Canal de la Sensée, marais, Canal Seine-Nord, proximité autoroutes A 1 / A 26 / A 2, ...

Performance énergétique

logement extrêmement consommateur d’énergie logement très performant passoire énergétique kg CO /m².an ² consommation (énergie primaire) émissions kWh/m².an 196 6 *
6 kg CO /m².an ² * Dont émissions de gaz à effet de serre peu d’émissions de CO émissions de CO très importantes ² ²

Caractéristiques

Nombre d'étages : 3
Cuisine : oui
Nombre de salles de bain : 1

Commodités

Cave : oui

Mandat

Téléphone mandataire : +33321730322
E-mail mandataire : Veuillez utiliser le formulaire de contact ci-dessous ...
Négociateur : Nicolas HEQUET

Cette annonce m'intéresse

Captcha
* Les champs suivis d'un astérisque sont obligatoires.

Conformément à la loi n°78-17 du 6 janvier 1978 modifiée relative à l'informatique, aux fichiers et aux libertés, et au règlement européen 2016/679, dit Règlement Général sur la Protection des Données (RGPD), vous disposez d'un droit d'accès, de rectification, de suppression des informations qui vous concernent.
Navigateur non pris en charge

Le navigateur Internet Explorer que vous utilisez actuellement ne permet pas d'afficher ce site web correctement.

Nous vous conseillons de télécharger et d'utiliser un navigateur plus récent et sûr tel que Google Chrome, Microsoft Edge, Mozilla Firefox, ou Safari (pour Mac) par exemple.
OK