Annonces immobilières

Toutes les annonces

Réseau des notaires

Nouvelle recherche Cette annonce m'intéresse

Maison T6 d'environ 196m² - sous-sol - jardin clo

Prix : 329 000,00 
Dont honoraires 13 286,00 € TTC inclus (4,21 %) à la charge de l'acquéreur, soit 315 714 € hors honoraires.
Type de bien : Maison
Pièces : 6 pièces / 4 chambres
Surface : 196,00m²
Localité : La Membrolle-sur-Choisille (37390)
Référence : 37008-2796

Description du bien

LA MEMBROLLE SUR CHOISSILE - Proche bourg

Maison d'environ 196 m² édifiée sur sous-sol complet - Terrain clos de 2 076 m².

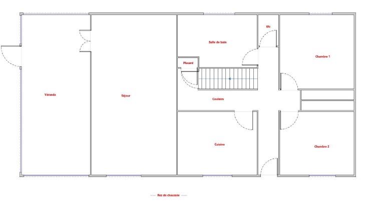
- Au rez-de-chaussée : entrée, cuisine aménagée, double séjour avec cheminée, véranda de 30 m² , dégagement, deux chambres, salle de bains, WC
- A l'étage : Pièce polyvalente (bureau/dressing) distribuant deux chambres, salle de bains, WC
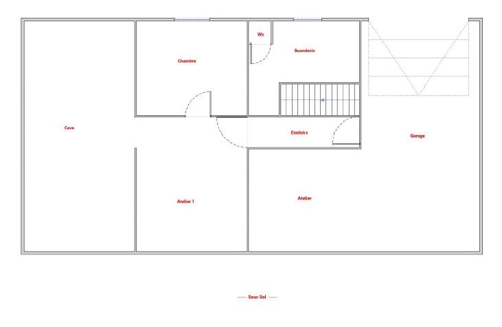
- Au sous-sol complet : garage, atelier, buanderie, cave et espaces annexes modulables, WC

Possibilité d'aménagement de l'étage pour un usage professionnel avec accès extérieur indépendant.

CARACTÉRISTIQUES TECHNIQUES
– Année de construction : 1986
– Exposition traversante : Nord-Sud
– Eau chaude sanitaire : cumulus électrique 300L
– Chauffage : radiateur électrique ( inertie et radiant)
– Menuiseries bois double vitrage
– Couverture ardoises
- Prise de recharge véhicule électrique
- Travaux de rafraîchissement à prévoir
- Mise aux normes de l'assainissement.
-

Performance énergétique

logement extrêmement consommateur d’énergie logement très performant passoire énergétique kg CO /m².an ² consommation (énergie primaire) émissions kWh/m².an 205 7 *
7 kg CO /m².an ² * Dont émissions de gaz à effet de serre peu d’émissions de CO émissions de CO très importantes ² ²

Montant des dépenses théoriques annuelles d’énergie

Coût annuel (min) : 3210.00 €
Coût annuel (max) : 4390.00 €
Année de référence : 2022

Caractéristiques

Nombre d'étages : 1
État général : A rafraîchir
Cuisine : oui
Nombre de salles de bain : 2
Terrasse : oui
Parking : oui

Commodités

Cave : oui

Mandat

Téléphone mandataire : +33674434500
E-mail mandataire : Veuillez utiliser le formulaire de contact ci-dessous ...
Négociateur : Jérémie MASSONNET

Cette annonce m'intéresse

Captcha
* Les champs suivis d'un astérisque sont obligatoires.

Conformément à la loi n°78-17 du 6 janvier 1978 modifiée relative à l'informatique, aux fichiers et aux libertés, et au règlement européen 2016/679, dit Règlement Général sur la Protection des Données (RGPD), vous disposez d'un droit d'accès, de rectification, de suppression des informations qui vous concernent.
Navigateur non pris en charge

Le navigateur Internet Explorer que vous utilisez actuellement ne permet pas d'afficher ce site web correctement.

Nous vous conseillons de télécharger et d'utiliser un navigateur plus récent et sûr tel que Google Chrome, Microsoft Edge, Mozilla Firefox, ou Safari (pour Mac) par exemple.
OK