Annonces immobilières

Toutes les annonces

Réseau des notaires

Nouvelle recherche Cette annonce m'intéresse

Plain pied 141 m² ABANCOURT

Prix : 250 000,00 
Honoraires inclus à la charge du vendeur.
Type de bien : Maison
Pièces : 6 pièces / 4 chambres
Surface : 141,00m²
Localité : Féchain (59247)
Référence : 62017-3223

Description du bien

++ Exclusivité Etude ++

Située à ABANCOURT (59268 Nord), au cœur du secteur DOUAI / VALENCIENNES / CAMBRAI / ARRAS :

Maison individuelle en plain pied à vendre.

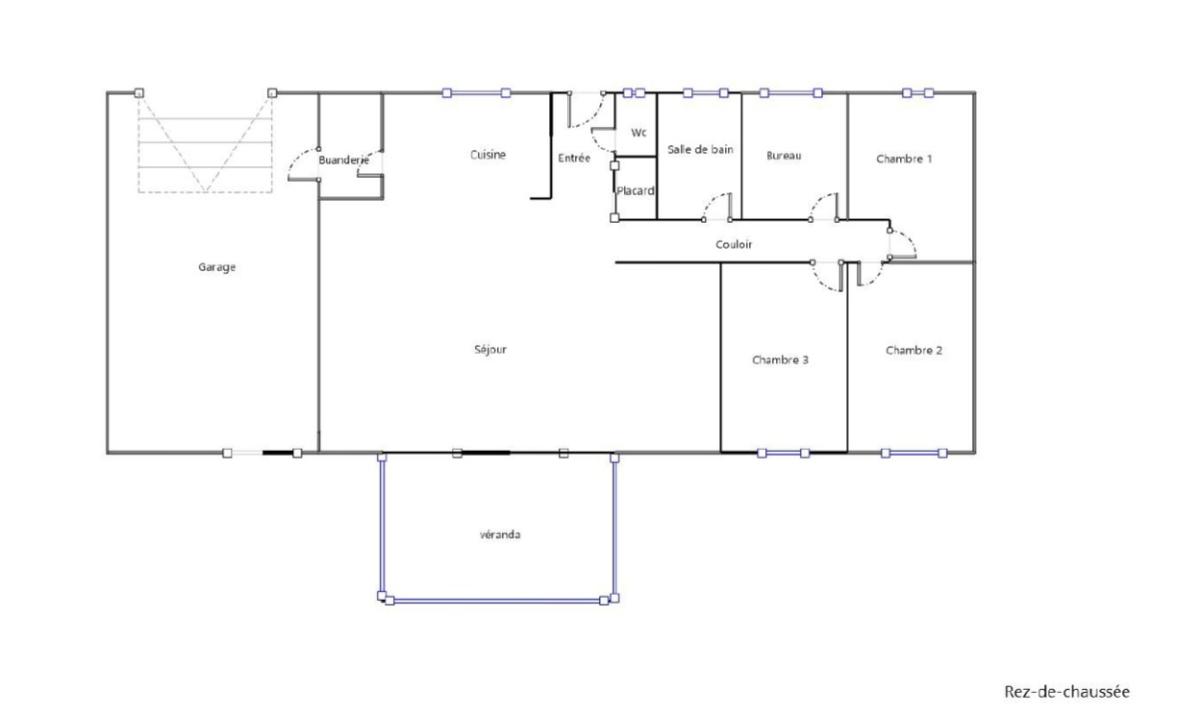
La maison, bâtie en 2002, se compose sur environ 141 m² comme suit :
* hall d'entrée (4,25 m²) et placards (2 m²) ;
* salon-séjour (40,5 m²) ouvert sur cuisine équipée (12,51 m²) ;
* cellier (3,3 m²) ;
* véranda (19 m², chauffée, directement accessible depuis le salon, construite par la société IVERCO) ;
* couloir (5,63 m²) ;
* 4 chambres (9,86 m² / 11,2 m² / 11,85 m² / 12,1 m²) ;
* salle d'eau (7,7 m²) ;
* WC (1,2 m²).

La maison est :
- actuellement chauffée par pompe à chaleur (air/eau) (installée en novembre 2024) ;
- équipée d'un chauffe-eau thermodynamique ainsi qu'une VMC double flux ;
- dotée de panneaux solaires (installés en mai 2024) ;
- équipée de menuiseries en PVC double vitrage + volets ;
- dotée d'une cuve à eau, de 10 m3, raccordée sur l'ensemble du réseau de la maison avec un système complet de filtrage le permettant ;
- raccordée au tout à l'égout ;
- doté de combles, isolés, non aménageables.

Extérieurement, le bien dispose également :
- de plusieurs places de stationnement en façade, ainsi que d'un grand garage (45 m², avec porte motorisée, accès direct à la maison ainsi qu'au jardin) ;
- d'un portail et d'un passage sur un côté de la maison ;
- d'une pergola (société IVERCO) ;
- d'un jardin clos et arboré, sans vis-à-vis ;
- de petites dépendances pour stockage de matériel de jardin ;
- d'un bassin à poissons.

Taxe foncière 2025 : 1.007 €.

Le tout sur et avec 1.057 m² de terrain.

La maison est située dans une rue calme et très peu passante : tranquillité assurée.

Informations relatives au diagnostic de performance énergétique : Consommations énergétiques (CE) Classe C indice 121 kWhEP/m²/an et émissions de gaz à effet de serre (GES) Classe C indice 11 kgéqCO2/m²/an.
Les informations sur les risques auxquels ce bien est exposé sont disponibles sur le site Géorisques : www.georisques.gouv.fr

Prix de vente : 250.000 € (honoraires de négociation à la charge du vendeur), provision sur frais d'acte de vente : 25.000 €.

Plus d'informations à la demande avant visite.

Secteur CAMBRAI, VALENCIENNES, DOUAI, FECHAIN, FRESSAIN, AUBIGNY-AU-BAC, AUBENCHEUL-AU-BAC, ARLEUX, BUGNICOURT, CANTIN, EPINOY, OISY-LE-VERGER, MARQUION, BRUNEMONT, PALLUEL, GOEULZIN, ESTREES, HAMEL, ROUCOURT, ERCHIN, MONCHECOURT, EMERCHICOURT, MARCQ-EN-OSTREVENT, MARQUETTE-EN-OSTREVANT, BOUCHAIN, WASNES-AU-BAC, WAVRECHAIN-SOUS-FAULX, PAILLENCOURT, ETRUN, HORDAIN, IWUY, HEM-LENGLET, THUN-L'EVEQUE, THUN-SAINT-MARTIN, ESWARS, CUVILLERS, BANTIGNY, SANCOURT, BLECOURT, TILLOY-LEZ-CAMBRAI, SAILLY-LEZ-CAMBRAI, NEUVILLE-SAINT-REMY, FONTAINE-NOTRE-DAME, ... E-Valley, Canal Seine-Nord, Autoroutes A2/A1/A21, ..

Performance énergétique

logement extrêmement consommateur d’énergie logement très performant passoire énergétique kg CO /m².an ² consommation (énergie primaire) émissions kWh/m².an 121 11 *
11 kg CO /m².an ² * Dont émissions de gaz à effet de serre peu d’émissions de CO émissions de CO très importantes ² ²

Caractéristiques

Exposition : nord-est
Nombre de salles de bain : 1
Terrasse : oui
Parking : oui

Mandat

Téléphone mandataire : +33321730322
E-mail mandataire : Veuillez utiliser le formulaire de contact ci-dessous ...
Négociateur : Nicolas HEQUET

Cette annonce m'intéresse

Captcha
* Les champs suivis d'un astérisque sont obligatoires.

Conformément à la loi n°78-17 du 6 janvier 1978 modifiée relative à l'informatique, aux fichiers et aux libertés, et au règlement européen 2016/679, dit Règlement Général sur la Protection des Données (RGPD), vous disposez d'un droit d'accès, de rectification, de suppression des informations qui vous concernent.
Navigateur non pris en charge

Le navigateur Internet Explorer que vous utilisez actuellement ne permet pas d'afficher ce site web correctement.

Nous vous conseillons de télécharger et d'utiliser un navigateur plus récent et sûr tel que Google Chrome, Microsoft Edge, Mozilla Firefox, ou Safari (pour Mac) par exemple.
OK