Annonces immobilières

Toutes les annonces

Réseau des notaires

Nouvelle recherche Cette annonce m'intéresse

BOIS GUILLAUME -

Prix : 393 750,00 
Dont honoraires 18 750,00 € TTC inclus (5,00 %) à la charge de l'acquéreur, soit 375 000 € hors honoraires.
Type de bien : Maison
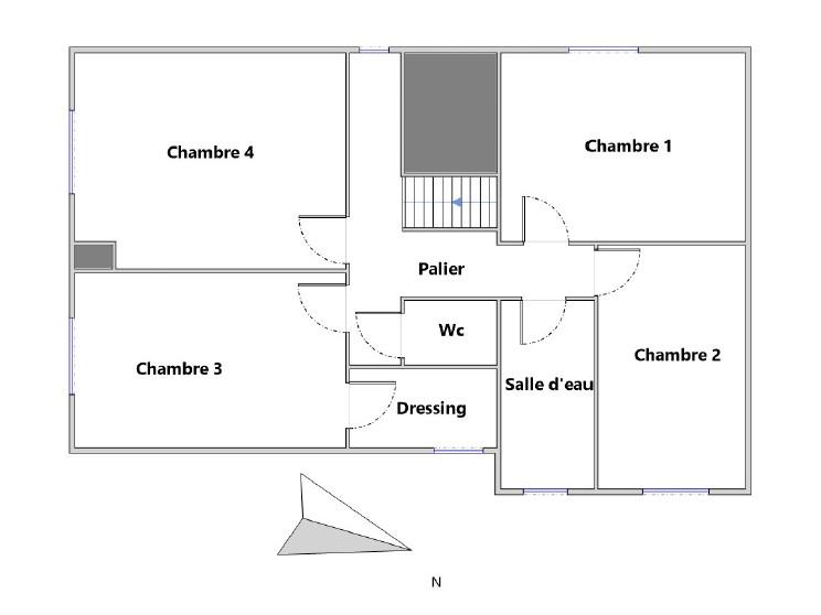
Pièces : 6 pièces / 4 chambres
Surface : 135,00m²
Localité : Bois-Guillaume (76230)
Référence : 76007-769

Description du bien

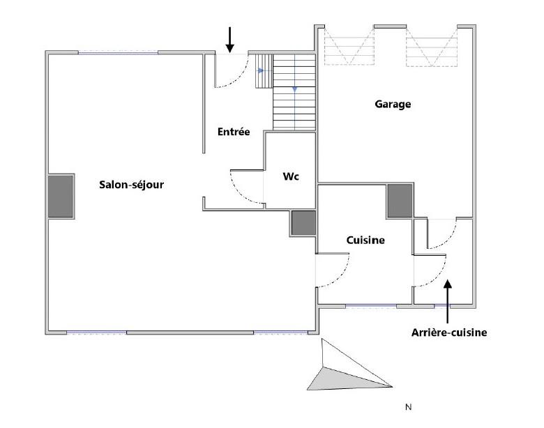
EXCLUSIVITE - BOIS GUILLAUME Secteur Résidentiel : Au calme dans une impasse, Proche des commerces et des transports. Maison familiale individuelle (145 M² au sol) édifiée sur une parcelle de 519 M², offrant Entrée, grande Pièce de Vie (42M ²) avec Cheminée, Cuisine indépendante, Arrière cuisine, W.c et Garage Double attenant. A l'étage un Palier desservant Une Salle de Bains avec douche, un W.c indépendant et 4 Chambres dont une Chambre parentale avec sa propre Salle de Bains. Agréable jardin arboré. Beau potentiel, prévoir travaux de rafraichissement. Pour tous renseignements et visite contacter directement Mr Richard VIGREUX au 07.88.37.53.17.

Performance énergétique

logement extrêmement consommateur d’énergie logement très performant passoire énergétique kg CO /m².an ² consommation (énergie primaire) émissions kWh/m².an 133 27 *
27 kg CO /m².an ² * Dont émissions de gaz à effet de serre peu d’émissions de CO émissions de CO très importantes ² ²

Caractéristiques

Nombre d'étages : 2
État général : A rafraîchir
Nombre de salles de bain : 2
Terrasse : oui

Mandat

Téléphone mandataire : +33235717155
E-mail mandataire : Veuillez utiliser le formulaire de contact ci-dessous ...
Négociateur : Richard VIGREUX

Cette annonce m'intéresse

Captcha
* Les champs suivis d'un astérisque sont obligatoires.

Conformément à la loi n°78-17 du 6 janvier 1978 modifiée relative à l'informatique, aux fichiers et aux libertés, et au règlement européen 2016/679, dit Règlement Général sur la Protection des Données (RGPD), vous disposez d'un droit d'accès, de rectification, de suppression des informations qui vous concernent.
Navigateur non pris en charge

Le navigateur Internet Explorer que vous utilisez actuellement ne permet pas d'afficher ce site web correctement.

Nous vous conseillons de télécharger et d'utiliser un navigateur plus récent et sûr tel que Google Chrome, Microsoft Edge, Mozilla Firefox, ou Safari (pour Mac) par exemple.
OK