Annonces immobilières

Toutes les annonces

Réseau des notaires

Nouvelle recherche Cette annonce m'intéresse

A vendre : Maison T6 - 133m² - Le Thuit de l'Oison (27370)

Prix : 273 000,00 
Dont honoraires 10 000,00 € TTC inclus à la charge de l'acquéreur, soit 263 000 € hors honoraires.
Type de bien : Maison
Pièces : 6 pièces / 3 chambres
Surface : 132,50m²
Terrain : 895,00m²
Localité : Le Thuit de l'Oison (27370)
Référence : A-27061

Description du bien

Maison de charme rénovée au centre de Thuit Signol.

Découvrez cette maison normande de 132, m², rénovée en 1998, qui allie le charme de l'ancien avec le confort moderne. Située au coeur de la commune à proximité des commodités.

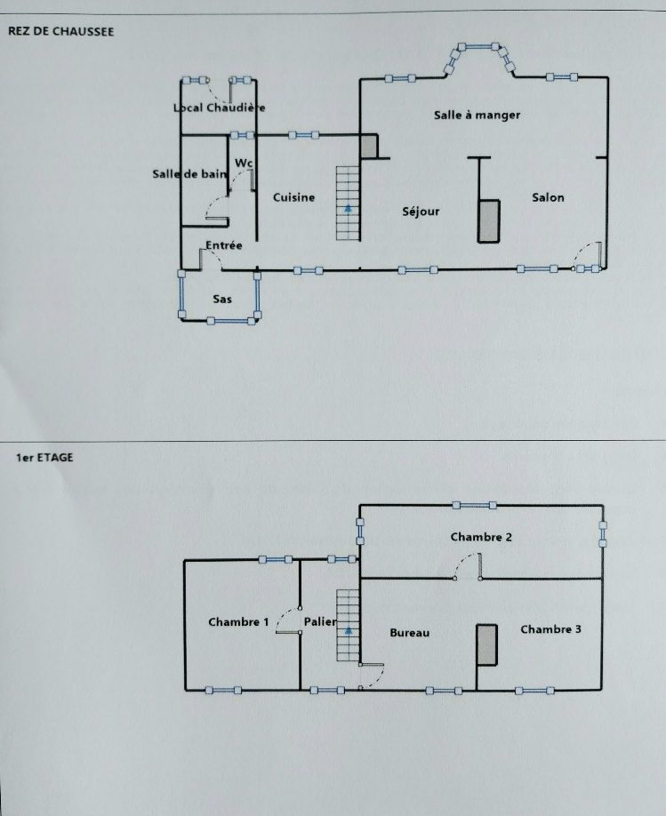
La maison, en bon état comprenant depuis une entrée abritée au RDC : Entrée, salle de bain, wc, buanderie, cuisine aménagée et équipée, accès étage, salle salon de 55 m² avec espace salle, salon et salle à manger.
A l'étage : palier, une chambre, bureau desservant 2 autres chambres.
Les menuiseries en bois en double vitrage. Le chauffage au gaz de ville.
Une terrasse devant la maison permet de profiter de l'exposition au sud.

Une annexe à usage de garages, et remise et une pièce aménagée, offrent un véritable plus.

À proximité, les écoles maternelles et élémentaires à 10 min à pied, un collège à 5 min en voiture, des commerces de proximité, pharmacie et restaurant à 5 min à pied, ainsi que plusieurs médecins généralistes à 5 min en voiture. Les informations sur les risques auxquels ce bien est exposé sont disponibles sur le site Géorisques : georisques.gouv.fr

Performance énergétique

logement extrêmement consommateur d’énergie logement très performant passoire énergétique kg CO /m².an ² consommation (énergie primaire) émissions kWh/m².an 240 45 *
45 kg CO /m².an ² * Dont émissions de gaz à effet de serre peu d’émissions de CO émissions de CO très importantes ² ²

Montant des dépenses théoriques annuelles d’énergie

Coût annuel (min) : 2780.00 €
Coût annuel (max) : 3800.00 €
Année de référence : 2021

Caractéristiques

Nombre d'étages : 1
État général : Bon
Situation locative : libre
Cuisine : oui
Nombre de salles de bain : 1

Mandat

Téléphone mandataire : +33232356212
E-mail mandataire : Veuillez utiliser le formulaire de contact ci-dessous ...
Négociateur : Hélène HOOGTERP

Cette annonce m'intéresse

Captcha
* Les champs suivis d'un astérisque sont obligatoires.

Conformément à la loi n°78-17 du 6 janvier 1978 modifiée relative à l'informatique, aux fichiers et aux libertés, et au règlement européen 2016/679, dit Règlement Général sur la Protection des Données (RGPD), vous disposez d'un droit d'accès, de rectification, de suppression des informations qui vous concernent.
Navigateur non pris en charge

Le navigateur Internet Explorer que vous utilisez actuellement ne permet pas d'afficher ce site web correctement.

Nous vous conseillons de télécharger et d'utiliser un navigateur plus récent et sûr tel que Google Chrome, Microsoft Edge, Mozilla Firefox, ou Safari (pour Mac) par exemple.
OK