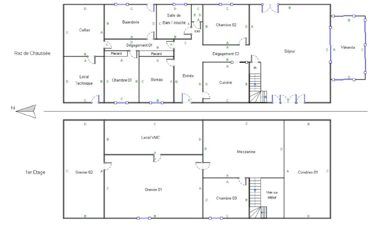
MORMANT SUR VERNISSON, à 5 minutes en voiture de la Zone commerciale d''Amilly Antibes, venez découvrir cette longère de 210 m², sur un terrain de 6.483 m², et comprenant :
- Au rez-de-chaussée : entrée, cuisine, séjour (62 m²) avec cheminée et monte charge (accès cave), bureau ou chambre, 2 chambres, salle de bains avec douche, W.C, buanderie/chaufferie, 2 celliers dont 1 avec monte charge (accès étage), véranda avec store électrique sur la toiture.
- A l'étage : une grande pièce palière/mezzanine, 1 chambre avec un point d'eau, greniers aménageables : 44 m², 30 m².
Prestations (rénovation globale années 2000) : double-vitrage PVC, volets battants PVC et roulants électriques, plancher chauffant (système central au fioul), "normes PMR au RDC", assainissement individuel (fosse toutes eaux), portail électrique, aspiration centralisée.
Grange comprenant un atelier (48 m²) et double-garage (40 m²).
Jardin pour partie boisée de 6.483 m², avec un puits, préau et bûcher.
Possibilité de dégager un terrain à bâtir d'environ 1.700 m² dont 1000 m² en zone Uc (Zone Urbaine des Hameaux).
Performance énergétique
Montant des dépenses théoriques annuelles d’énergie
Coût annuel (min) : 3310.00 €
Coût annuel (max) : 4540.00 €
Année de référence : 2023
Caractéristiques
Nombre d'étages :
2
Accès PMR (personne à mobilité réduite) :
oui
Cuisine :
oui
Nombre de salles de bain :
1
Mandat
Téléphone mandataire :
+33658591172
E-mail mandataire :
Veuillez utiliser le formulaire de contact ci-dessous ...
Nous avons recours à des cookies techniques pour assurer le bon fonctionnement du site, nous utilisons également des cookies soumis à votre consentement pour collecter des statistiques de visite. Cliquez ci-dessous sur « ACCEPTER » pour accepter le dépôt de l'ensemble des cookies ou sur « CONFIGURER » pour choisir quels cookies nécessitant votre consentement seront déposés (cookies statistiques), avant de continuer votre visite du site. Plus d'informations