Annonces immobilières

Toutes les annonces

Réseau des notaires

Nouvelle recherche Cette annonce m'intéresse

LANGEAIS SECTEUR LA ROUCHOUSE - Maison traditionnelle à rénover.

Prix : 282 000,00 
Dont honoraires 13 700,00 € TTC inclus (5,11 %) à la charge de l'acquéreur, soit 268 300 € hors honoraires.
Type de bien : Maison
Pièces : 5 pièces / 3 chambres
Surface : 172,00m²
Terrain : 3 729,00m²
Localité : Langeais (37130)
Référence : 37119-2

Description du bien

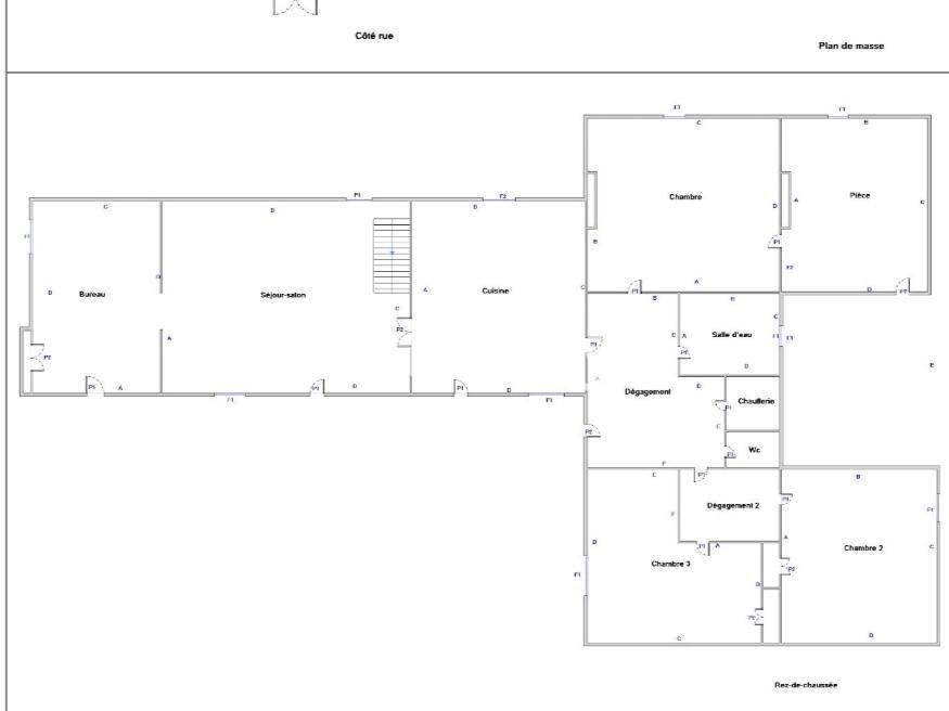
Maison + annexes = 389m² de bâtis à rénover sur 4040m² de terrain piscinable.

La maison principale allie confort (vie de plain-pied, pompe à chaleur, double vitrage) et tradition (cheminées, tommettes, poutres apparentes). Ouverte vers l'extérieur, elle est très lumineuse, avec un accès direct au jardin pour chaque pièce.
De plain-pied, l'espace jour de 73 m², 3 chambres, une salle d'eau et une grande buanderie à transformer en salle de bain. A l'étage, un grenier de 103m² à aménager.
Les bâtiments annexes : une cave, un atelier, un garage et une grange.

Performance énergétique

logement extrêmement consommateur d’énergie logement très performant passoire énergétique kg CO /m².an ² consommation (énergie primaire) émissions kWh/m².an 161 5 *
5 kg CO /m².an ² * Dont émissions de gazà effet de serre peu d’émissions de CO émissions de COtrès importantes ² ²

Montant des dépenses théoriques annuelles d’énergie

Coût annuel (min) : 2110.00 €
Coût annuel (max) : 2890.00 €
Année de référence : 2023

Caractéristiques

Nombre d'étages : 2
État général : A rafraîchir
Exposition : sud-est
Situation locative : libre
Accès PMR (personne à mobilité réduite) : oui
Parking : oui

Commodités

Cave : oui

Mandat

Téléphone mandataire : +33247969478
E-mail mandataire : Veuillez utiliser le formulaire de contact ci-dessous ...
Négociateur : Jean-Grégoire BARRET

Cette annonce m'intéresse

Captcha
* Les champs suivis d'un astérisque sont obligatoires.

Conformément à la loi n°78-17 du 6 janvier 1978 modifiée relative à l'informatique, aux fichiers et aux libertés, et au règlement européen 2016/679, dit Règlement Général sur la Protection des Données (RGPD), vous disposez d'un droit d'accès, de rectification, de suppression des informations qui vous concernent.
Navigateur non pris en charge

Le navigateur Internet Explorer que vous utilisez actuellement ne permet pas d'afficher ce site web correctement.

Nous vous conseillons de télécharger et d'utiliser un navigateur plus récent et sûr tel que Google Chrome, Microsoft Edge, Mozilla Firefox, ou Safari (pour Mac) par exemple.
OK