A vendre sur la commune d'HASNON , à proximité immédiate de l'A23, cette maison individuelle d'une surface habitable d'environ 105 m², et érigé sur 638 m².
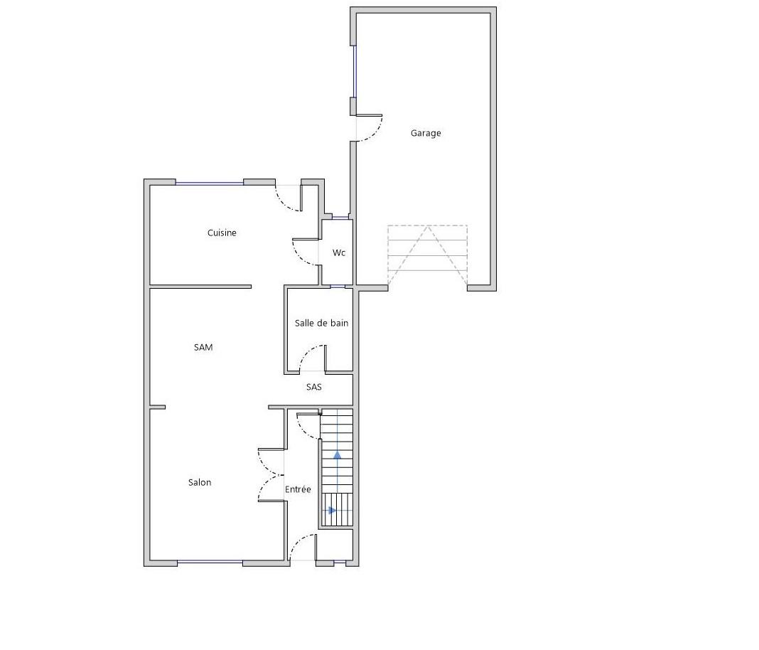
En rez-de-chaussée de cette maison rénovée, vous y trouverez un couloir d'entrée donnant accès à la cave, au Salon Salle à manger, la cuisine équipée, la salle de bains ainsi que les WC ;
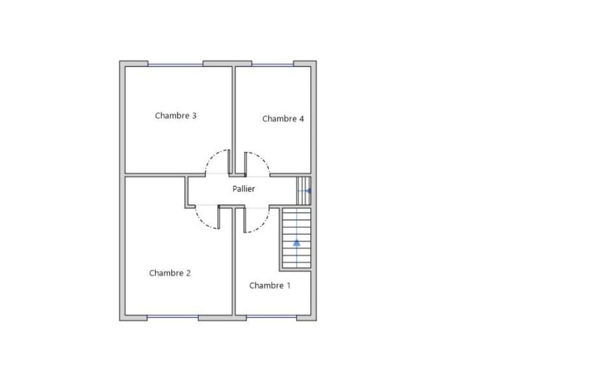
La visite se poursuit à l'étage avec au premier le palier desservant 2 chambres, et 2 espaces nuit ( 7.65 met 8.97m)
Et au second étage un grenier aménageable.
A l'extérieur, une cour et un jardin exposés SUD-EST, ainsi qu'un garage avec petite buanderie.
La maison est équipée d'un système de chauffage central au gaz de ville, de menuiseries en PVC/Double Vitrage, et est reliée au tout-à-l'égout.
Classe F et E Consommation énergétique : 351 Wh/m²/an dont Émission de gaz à effet de serre : 65 CO2/m²/an
Les informations sur les risques auxquels ce bien est exposé sont disponibles sur le site Géorisques www.georisques.gouv.fr
PRIX ANNONCE HORS FRAIS D'ACTE
Performance énergétique
Logement à consommation énergétique excessive
Caractéristiques
Nombre d'étages :
1
État général :
Bon
Exposition :
sud-est
Situation locative :
libre
Cuisine :
oui
Nombre de salles de bain :
1
Commodités
Cave :
oui
Mandat
Téléphone mandataire :
+33327485253
E-mail mandataire :
Veuillez utiliser le formulaire de contact ci-dessous ...
Nous avons recours à des cookies techniques pour assurer le bon fonctionnement du site, nous utilisons également des cookies soumis à votre consentement pour collecter des statistiques de visite. Cliquez ci-dessous sur « ACCEPTER » pour accepter le dépôt de l'ensemble des cookies ou sur « CONFIGURER » pour choisir quels cookies nécessitant votre consentement seront déposés (cookies statistiques), avant de continuer votre visite du site. Plus d'informations