Vous recherchez une maison proche de l'accès autoroute, de la gare, et des écoles ?
Je vous présente cette maison de type "1930" dans le quartier du Moulin Blanc, d'une surface habitable d'environ 95 m², et érigée sur 845 m².
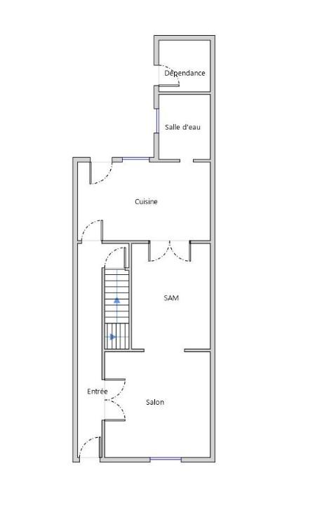
Vous y trouverez au rez-de-chaussée un couloir menant à la cave, au salon-salle à manger, la cuisine et les WC ;
Le premier étage vous conduit sur un palier desservant deux chambres, dont une grande séparée en deux.
Et le second étage à un grenier.
La maison dispose d'une cour et d'un jardin.
Et est équipée d'un système de chauffage par convecteur au gaz de ville, de menuiseries en simple vitrage, et est reliée au Tout-à-l'égout.
Des travaux de rénovation sont à prévoir pour l'ensemble de ce bien.
Classe D Consommation énergétique : 202 Wh/m²/an dont Émission de gaz à effet de serre : 39 CO2/m²/an
Les informations sur les risques auxquels ce bien est exposé sont disponibles sur le site Géorisques « www.georisques.gouv.fr »
PRIX ANNONCE HORS FRAIS D'ACTE
Performance énergétique
Caractéristiques
Nombre d'étages :
2
État général :
A rénover
Exposition :
nord-ouest
Situation locative :
libre
Commodités
Cave :
oui
Mandat
Téléphone mandataire :
+33327485253
E-mail mandataire :
Veuillez utiliser le formulaire de contact ci-dessous ...
Nous avons recours à des cookies techniques pour assurer le bon fonctionnement du site, nous utilisons également des cookies soumis à votre consentement pour collecter des statistiques de visite. Cliquez ci-dessous sur « ACCEPTER » pour accepter le dépôt de l'ensemble des cookies ou sur « CONFIGURER » pour choisir quels cookies nécessitant votre consentement seront déposés (cookies statistiques), avant de continuer votre visite du site. Plus d'informations