Annonces immobilières

Toutes les annonces

Réseau des notaires

Nouvelle recherche Cette annonce m'intéresse

SAINT PIERRE DES CORPS - Proche collège Stalingrad - Ideal Artisan (stockage + stationnements)

Prix : 167 680,00 
Dont honoraires 7 680,00 € TTC inclus (4,80 %) à la charge de l'acquéreur, soit 160 000 € hors honoraires.
Type de bien : Maison
Pièces : 4 pièces / 2 chambres
Surface : 92,00m²
Localité : Saint-Pierre-des-Corps (37700)
Référence : 37008-2802

Description du bien

SAINT PIERRE DES CORPS - Proche collège Stalingrad - Ideal Artisan ayant besoin stockage et stationnements
Maison 1952 mitoyenne 1 côté env 92 m2 avec véranda chauffée
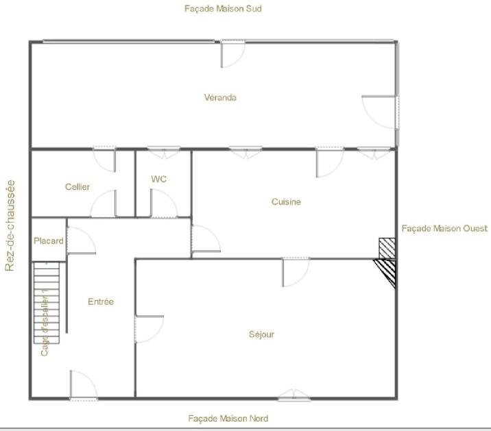
Rdc :entrée, rangement , débarras, wc, cuisine, salle à manger,
1er : parqueté palier, dressing, 2 chambres, salle d'eau,
2eme : grenier aménageable non isolé, chape béton env 20 m2
Cour + parkings + Hangar env 81 m2
L'ensemble est à rénover entièrement (toiture, isolation, électricité, plomberie, cuisine, salle de bains,...) mais offre un beau potentiel

Performance énergétique

logement extrêmement consommateur d’énergie logement très performant kg CO /m².an ² consommation (énergie primaire) émissions kWh/m².an 340 75 *
75 kg CO /m².an ² * Dont émissions de gaz à effet de serre peu d’émissions de CO émissions de CO très importantes ² ²
Logement à consommation énergétique excessive

Montant des dépenses théoriques annuelles d’énergie

Coût annuel (min) : 2870.00 €
Coût annuel (max) : 3930.00 €
Année de référence : 2023

Caractéristiques

Nombre d'étages : 3
État général : A rénover

Mandat

Téléphone mandataire : +33247753210
E-mail mandataire : Veuillez utiliser le formulaire de contact ci-dessous ...
Négociateur : Elisabeth PAPIN

Cette annonce m'intéresse

Captcha
* Les champs suivis d'un astérisque sont obligatoires.

Conformément à la loi n°78-17 du 6 janvier 1978 modifiée relative à l'informatique, aux fichiers et aux libertés, et au règlement européen 2016/679, dit Règlement Général sur la Protection des Données (RGPD), vous disposez d'un droit d'accès, de rectification, de suppression des informations qui vous concernent.
Navigateur non pris en charge

Le navigateur Internet Explorer que vous utilisez actuellement ne permet pas d'afficher ce site web correctement.

Nous vous conseillons de télécharger et d'utiliser un navigateur plus récent et sûr tel que Google Chrome, Microsoft Edge, Mozilla Firefox, ou Safari (pour Mac) par exemple.
OK