Annonces immobilières

Toutes les annonces

Réseau des notaires

Nouvelle recherche Cette annonce m'intéresse

SECTEUR PRISE PLAIN PIED AVEC SOUS-SOL COMPLET INDIVIDUEL

Prix : 249 000,00 
Honoraires inclus à la charge du vendeur.
Type de bien : Maison
Pièces : 4 pièces / 3 chambres
Surface : 86,00m²
Localité : Lecelles (59226)
Référence : 59175-1698

Description du bien

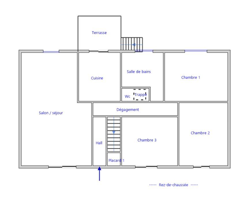
A vendre sur la commune de Lecelles, dans un secteur calme, ce plain-pied individuel d'une surface d'environ 86 m², et érigé sur 622 m².
Vous trouverez à l'intérieur de ce charmant pavillon construit en 1977, un hall d'entrée donnant accès à un salon-salle à manger traversant, une cuisine équipée avec une petite terrasse attenante, 3 chambres, une salle d'eau, ainsi que les WC.
Le bien dispose également d'un sous-sol complet comprenant le garage (deux véhicules) et deux espaces de stockage.
La visite se terminera par un jardin exposé Nord-Ouest.
La maison est équipée d'un système de chauffage central au gaz de ville, de menuiseries en bois double vitrage et alu double vitrage pour les baies vitrées, et est reliée au tout à l’égout.
Des travaux de rénovation sont à prévoir pour l'ensemble du bien.
Classe F Consommation énergétique : 403 Wh/m²/an dont Émission de gaz à effet de serre : 80 CO2/m²/an Les informations sur les risques auxquels ce bien est exposé sont disponibles sur le site Géorisques www.georisques.gouv.fr

Performance énergétique

logement extrêmement consommateur d’énergie logement très performant kg CO /m².an ² consommation (énergie primaire) émissions kWh/m².an 403 80 *
80 kg CO /m².an ² * Dont émissions de gaz à effet de serre peu d’émissions de CO émissions de CO très importantes ² ²
Logement à consommation énergétique excessive

Caractéristiques

Nombre d'étages : 1
État général : A rénover
Exposition : nord-ouest
Situation locative : libre
Terrasse : oui

Mandat

Téléphone mandataire : +33327485253
E-mail mandataire : Veuillez utiliser le formulaire de contact ci-dessous ...
Négociateur : Benjamin THIROUX

Cette annonce m'intéresse

Captcha
* Les champs suivis d'un astérisque sont obligatoires.

Conformément à la loi n°78-17 du 6 janvier 1978 modifiée relative à l'informatique, aux fichiers et aux libertés, et au règlement européen 2016/679, dit Règlement Général sur la Protection des Données (RGPD), vous disposez d'un droit d'accès, de rectification, de suppression des informations qui vous concernent.
Navigateur non pris en charge

Le navigateur Internet Explorer que vous utilisez actuellement ne permet pas d'afficher ce site web correctement.

Nous vous conseillons de télécharger et d'utiliser un navigateur plus récent et sûr tel que Google Chrome, Microsoft Edge, Mozilla Firefox, ou Safari (pour Mac) par exemple.
OK