Annonces immobilières

Toutes les annonces

Réseau des notaires

Nouvelle recherche Cette annonce m'intéresse

Maison de plain pieds sur la commune de MIMIZAN Plage

Prix : 341 880,00 
Dont honoraires 11 880,00 € TTC inclus (3,60 %) à la charge de l'acquéreur, soit 330 000 € hors honoraires.
Type de bien : Maison
Pièces : 4 pièces / 3 chambres
Surface : 84,67m²
Localité : Mimizan (40200)
Référence : 40007-69

Description du bien

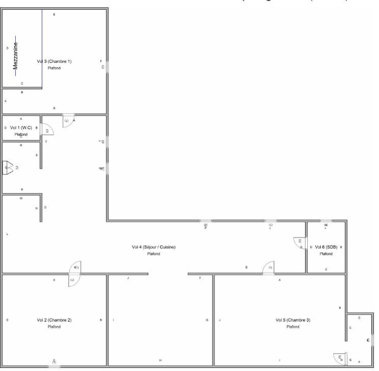
L'étude Notariale de MIMIZAN vous propose cette maison de plain-pied d'environ 87 m² (T4) sur la commune de MIMIZAN PLAGE, à 50 mètres de l'océan.
Elle se compose: d'une entrée avec dégagement, d'un séjour avec une kitchenette, 3 chambres dont une avec wc, lavabo et bidet, la seconde avec une arrivée d'eau pour installer une douche et la dernière possède déjà un grand dressing, salle d'eau, wc et un cellier.
Le tout sur une parcelle de 241 m² qui vous permettra de chiller avant d'aller faire un plouf !
idéal pour votre future habitation principale/secondaire et/ou de l'investissement locatif.
A visiter sans tarder, Bien RARE sur le secteur.
VISITE UNIQUEMENT SUR RENDEZ VOUS, CONTACTEZ LE SERVICE NEGOCIATIONS AU 07.85.20.13.61 OU PAR MAIL : negociations.40007@notaires.fr. ETUDE OUVERTE DU LUNDI AU VENDREDI DE 9H à 12H et de 14H à 18H.
Les informations sur les risques auxquels ce bien est exposé sont disponibles sur le site Géorisques : www.georisques.gouv.fr

Performance énergétique

logement extrêmement consommateur d’énergie logement très performant passoire énergétique kg CO /m².an ² consommation (énergie primaire) émissions kWh/m².an 246 8 *
8 kg CO /m².an ² * Dont émissions de gaz à effet de serre peu d’émissions de CO émissions de CO très importantes ² ²

Montant des dépenses théoriques annuelles d’énergie

Coût annuel (min) : 1590.00 €
Coût annuel (max) : 2220.00 €
Année de référence : 2021

Caractéristiques

Nombre d'étages : 1
État général : A rafraîchir
Situation locative : libre
Cuisine : oui

Mandat

Téléphone mandataire : +33785201361
E-mail mandataire : Veuillez utiliser le formulaire de contact ci-dessous ...
Négociateur : Caroline DULAURANS

Cette annonce m'intéresse

Captcha
* Les champs suivis d'un astérisque sont obligatoires.

Conformément à la loi n°78-17 du 6 janvier 1978 modifiée relative à l'informatique, aux fichiers et aux libertés, et au règlement européen 2016/679, dit Règlement Général sur la Protection des Données (RGPD), vous disposez d'un droit d'accès, de rectification, de suppression des informations qui vous concernent.
Navigateur non pris en charge

Le navigateur Internet Explorer que vous utilisez actuellement ne permet pas d'afficher ce site web correctement.

Nous vous conseillons de télécharger et d'utiliser un navigateur plus récent et sûr tel que Google Chrome, Microsoft Edge, Mozilla Firefox, ou Safari (pour Mac) par exemple.
OK