Annonces immobilières

Toutes les annonces

Réseau des notaires

Nouvelle recherche Cette annonce m'intéresse

45200 MONATRGIS - Meulière 4 pièces 81m²

Prix : 99 360,00 
Dont honoraires 7 360,00 € TTC inclus (8,00 %) à la charge de l'acquéreur, soit 92 000 € hors honoraires.
Type de bien : Maison
Pièces : 4 pièces / 3 chambres
Surface : 77,00m²
Localité : Montargis (45200)
Référence : 45050-1385

Description du bien

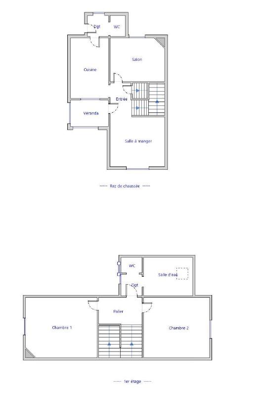
Au centre-ville de Montargis, meulière d'environ 77 m², comprenant :
- Au rez-de-chaussée : entrée par véranda, salon, cuisine, une chambre, dégagement et wc.
- A l'étage : palier, deux chambres, dégagement, salle d'eau et wc séparés.
- Sous-sol total : chaufferie et espace de rangement.

Jardin de 337m² clos de mur, exposé ouest avec dépendances à usage de rangement.

Diagnostique de Performance Energetique :
Consommation : 406 kWh/m²/an, Classe : G
Émissions : 126 kg CO2/m²/an, Classe : G
Les informations sur les risques auxquels ce bien est exposé sont disponibles sur le site Géorisques : http://www.georisques.gouv.fr.

Performance énergétique

logement extrêmement consommateur d’énergie logement très performant kg CO /m².an ² consommation (énergie primaire) émissions kWh/m².an 406 126 *
126 kg CO /m².an ² * Dont émissions de gaz à effet de serre peu d’émissions de CO émissions de CO très importantes ² ²
Logement à consommation énergétique excessive

Montant des dépenses théoriques annuelles d’énergie

Coût annuel (min) : 3850.00 €
Coût annuel (max) : 5260.00 €
Année de référence : 2023

Caractéristiques

Nombre d'étages : 3
État général : A rafraîchir
Exposition : ouest
Situation locative : libre

Commodités

Cave : oui

Mandat

Téléphone mandataire : +33238986678
E-mail mandataire : Veuillez utiliser le formulaire de contact ci-dessous ...
Négociateur : Yann FOUILLÉ

Cette annonce m'intéresse

Captcha
* Les champs suivis d'un astérisque sont obligatoires.

Conformément à la loi n°78-17 du 6 janvier 1978 modifiée relative à l'informatique, aux fichiers et aux libertés, et au règlement européen 2016/679, dit Règlement Général sur la Protection des Données (RGPD), vous disposez d'un droit d'accès, de rectification, de suppression des informations qui vous concernent.
Navigateur non pris en charge

Le navigateur Internet Explorer que vous utilisez actuellement ne permet pas d'afficher ce site web correctement.

Nous vous conseillons de télécharger et d'utiliser un navigateur plus récent et sûr tel que Google Chrome, Microsoft Edge, Mozilla Firefox, ou Safari (pour Mac) par exemple.
OK