Annonces immobilières

Toutes les annonces

Réseau des notaires

Nouvelle recherche Cette annonce m'intéresse

PANNES Maison 2-4 CH 135 m²

Prix : 149 900,00 
Honoraires inclus à la charge du vendeur.
Type de bien : Maison
Pièces : 4 pièces / 2 chambres
Surface : 135,00m²
Localité : Pannes (45700)
Référence : 45051-436

Description du bien

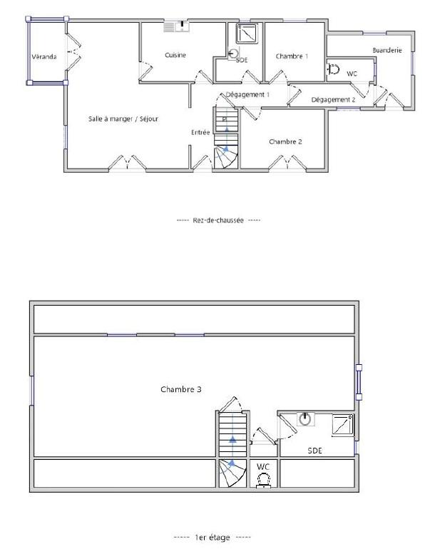
PANNES, Sainte-Catherine / La ronce, en face du Canal d'Orléans, venez découvrir cette maison de 135 m², élevée sur vide-sanitaire, et comprenant :
Au rez-de-chaussée : entrée, séjour (32,67 m²) avec cheminée insert et accès à une véranda de 8,26 m², cuisine (11,41 m²), salle d’eau (4 m²), 2 chambres (12,50 m² et 10,72 m²), WC, buanderie/chaufferie.
À l’étage, une grande pièce palière d’environ 40 m² pouvant être diviser en 2 chambres supplémentaires, salle d’eau (4 m²) et un WC.
Prestations : tableau électrique récent, chauffage central au fioul avec production d’eau chaude, menuiseries en simple vitrage bois et double vitrage PVC, tout-à-l’égout.
Travaux à prévoir : amélioration de la performance énergétique (menuiseries, système de chauffage...), présence de matériels électriques vétustes.

Un bâtiment de 42 m², partiellement élevé sur vide-sanitaire et cave, comprenant une grande pièce (27,23 m²) et seconde pièce (15,42 m²).
Prestations : menuiseries en double vitrage bois avec volets roulants manuels, pas de système de chauffage.

Jardin de 1002 m² avec un garage ouvert attenant au second bâtiment (16,2 m²).

Possibilité d'ajouter en sus un terrain d'environ 780 m² (Zone UB2) à l'arrière de la maison moyennant un prix complémentaire (propriétaire différent).

Performance énergétique

logement extrêmement consommateur d’énergie logement très performant kg CO /m².an ² consommation (énergie primaire) émissions kWh/m².an 361 74 *
74 kg CO /m².an ² * Dont émissions de gaz à effet de serre peu d’émissions de CO émissions de CO très importantes ² ²
Logement à consommation énergétique excessive

Montant des dépenses théoriques annuelles d’énergie

Coût annuel (min) : 4760.00 €
Coût annuel (max) : 6500.00 €
Année de référence : 2023

Caractéristiques

Nombre d'étages : 2
Situation locative : libre
Terrasse : oui

Commodités

Cave : oui

Mandat

Téléphone mandataire : +33658591172
E-mail mandataire : Veuillez utiliser le formulaire de contact ci-dessous ...
Négociateur : Nicolas LANTHIEZ

Cette annonce m'intéresse

Captcha
* Les champs suivis d'un astérisque sont obligatoires.

Conformément à la loi n°78-17 du 6 janvier 1978 modifiée relative à l'informatique, aux fichiers et aux libertés, et au règlement européen 2016/679, dit Règlement Général sur la Protection des Données (RGPD), vous disposez d'un droit d'accès, de rectification, de suppression des informations qui vous concernent.
Navigateur non pris en charge

Le navigateur Internet Explorer que vous utilisez actuellement ne permet pas d'afficher ce site web correctement.

Nous vous conseillons de télécharger et d'utiliser un navigateur plus récent et sûr tel que Google Chrome, Microsoft Edge, Mozilla Firefox, ou Safari (pour Mac) par exemple.
OK