Annonces immobilières

Toutes les annonces

Réseau des notaires

Vous êtes ici :
Nouvelle recherche Cette annonce m'intéresse

Maison

Prix : 105 900,00 
Honoraires inclus à la charge du vendeur.
Type de bien : Maison
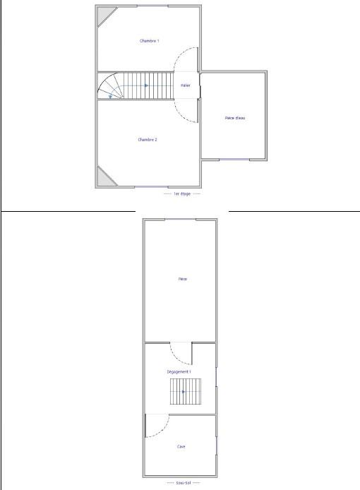
Pièces : 4 pièces / 2 chambres
Surface : 100,04m²
Localité : Amilly (45200)
Référence : 45052-1541

Description du bien

Maison à vendre située à Amilly, d'une surface de 100 m², construite en 1920. Cette maison à étages comprend 4 pièces, dont 2 chambres. Elle dispose d'une salle d'eau et de 2 WC. Le séjour, d'une surface de 19,41 m².
La maison est équipée d'une cave et d'un garage de 10 m².
Une terrasse et une véranda complètent ce bien.
Le chauffage est assuré par une chaudière à condensation fonctionnant au gaz de ville. Les huisseries sont en bois avec double vitrage.
L'état général nécessite des travaux de rafraîchissement.
Diagnostique de Performance Energetique
Les informations sur les risques auxquels ce bien est exposé sont disponibles sur le site Géorisques : http://www.georisques.gouv.fr.

Performance énergétique

logement extrêmement consommateur d’énergie logement très performant kg CO /m².an ² consommation (énergie primaire) émissions kWh/m².an 407 59 *
59 kg CO /m².an ² * Dont émissions de gaz à effet de serre peu d’émissions de CO émissions de CO très importantes ² ²
Logement à consommation énergétique excessive

Montant des dépenses théoriques annuelles d’énergie

Coût annuel (min) : 2790.00 €
Coût annuel (max) : 2840.00 €
Année de référence : 2024

Caractéristiques

Nombre d'étages : 1
État général : A rafraîchir
Terrasse : oui

Commodités

Cave : oui

Mandat

Téléphone mandataire : +33673948664
E-mail mandataire : Veuillez utiliser le formulaire de contact ci-dessous ...
Négociateur : Sabine BOICHÉ

Cette annonce m'intéresse

Captcha
* Les champs suivis d'un astérisque sont obligatoires.

Conformément à la loi n°78-17 du 6 janvier 1978 modifiée relative à l'informatique, aux fichiers et aux libertés, et au règlement européen 2016/679, dit Règlement Général sur la Protection des Données (RGPD), vous disposez d'un droit d'accès, de rectification, de suppression des informations qui vous concernent.
Navigateur non pris en charge

Le navigateur Internet Explorer que vous utilisez actuellement ne permet pas d'afficher ce site web correctement.

Nous vous conseillons de télécharger et d'utiliser un navigateur plus récent et sûr tel que Google Chrome, Microsoft Edge, Mozilla Firefox, ou Safari (pour Mac) par exemple.
OK