Annonces immobilières

Toutes les annonces

Réseau des notaires

Nouvelle recherche Cette annonce m'intéresse

Maison à AMILLY

Prix : 95 812,00 
Honoraires inclus à la charge du vendeur.
Type de bien : Maison
Pièces : 3 pièces / 2 chambres
Surface : 56,88m²
Localité : Amilly (45200)
Référence : 45052-1537

Description du bien

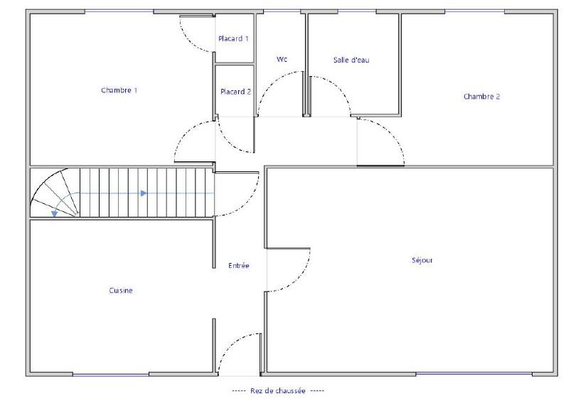
Cette maison individuelle de 56,88 m² offre un cadre de vie pratique. Construite en 1965, elle dispose de 3 pièces, dont une pièce principale de 18 m², 2 chambres, une salle d'eau et un WC indépendant. La maison bénéficie d'un balcon de 5 m².
Il dispose également d'un sous sol total compose d'une cave, buanderie et garage.
Le bien, nécessitant un rafraîchissement, est doté d'un standing standard et se situe sur un terrain de 724 m².
les points positifs :
toiture refaite, Isolation dans les combles et chaudière gaz récente, proximité des commodités.
Parfait pour un premier achat ou en investissement locatif.

Performance énergétique

logement extrêmement consommateur d’énergie logement très performant kg CO /m².an ² consommation (énergie primaire) émissions kWh/m².an 459 100 *
100 kg CO /m².an ² * Dont émissions de gaz à effet de serre peu d’émissions de CO émissions de CO très importantes ² ²
Logement à consommation énergétique excessive

Montant des dépenses théoriques annuelles d’énergie

Coût annuel (min) : 2350.00 €
Coût annuel (max) : 3220.00 €
Année de référence : 2023

Caractéristiques

Nombre d'étages : 1
État général : Bon
Situation locative : libre
Cuisine : oui
Nombre de balcons : 1

Commodités

Cave : oui

Mandat

Téléphone mandataire : +33673948664
E-mail mandataire : Veuillez utiliser le formulaire de contact ci-dessous ...
Négociateur : Sabine BOICHÉ

Cette annonce m'intéresse

Captcha
* Les champs suivis d'un astérisque sont obligatoires.

Conformément à la loi n°78-17 du 6 janvier 1978 modifiée relative à l'informatique, aux fichiers et aux libertés, et au règlement européen 2016/679, dit Règlement Général sur la Protection des Données (RGPD), vous disposez d'un droit d'accès, de rectification, de suppression des informations qui vous concernent.
Navigateur non pris en charge

Le navigateur Internet Explorer que vous utilisez actuellement ne permet pas d'afficher ce site web correctement.

Nous vous conseillons de télécharger et d'utiliser un navigateur plus récent et sûr tel que Google Chrome, Microsoft Edge, Mozilla Firefox, ou Safari (pour Mac) par exemple.
OK