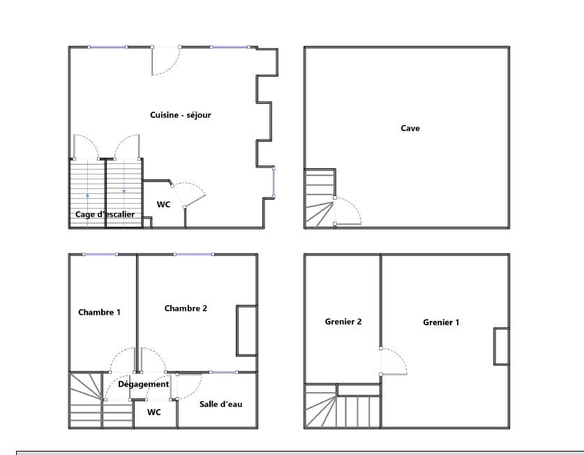
Maison à RÉNOVER comprenant en RDC une pièce de vie avec cuisine ouverte avec tubage pour nouveau mode de chauffage, puis WC. A l’étage un palier desservant une pièce et une chambre, une salle d'eau et un WC séparé.
Grenier au dessus et cave en sous-sol. Chauffage électrique. Porte d'entrée en PVC. Le tout sur une parcelle de 42m².
Performance énergétique
Logement à consommation énergétique excessive
Caractéristiques
Nombre d'étages :
2
État général :
A rénover
Commodités
Cave :
oui
Mandat
Téléphone mandataire :
+33243974002
E-mail mandataire :
Veuillez utiliser le formulaire de contact ci-dessous ...
Nous avons recours à des cookies techniques pour assurer le bon fonctionnement du site, nous utilisons également des cookies soumis à votre consentement pour collecter des statistiques de visite. Cliquez ci-dessous sur « ACCEPTER » pour accepter le dépôt de l'ensemble des cookies ou sur « CONFIGURER » pour choisir quels cookies nécessitant votre consentement seront déposés (cookies statistiques), avant de continuer votre visite du site. Plus d'informations