Annonces immobilières

Toutes les annonces

Réseau des notaires

Nouvelle recherche Cette annonce m'intéresse

CHERBOURG CENTRE: maison de ville de 248m² avec cour

Prix : 315 000,00 
Dont honoraires 15 000,00 € TTC inclus (5,00 %) à la charge de l'acquéreur, soit 300 000 € hors honoraires.
Type de bien : Maison
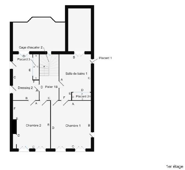
Pièces : 11 pièces / 6 chambres
Surface : 248,00m²
Terrain : 179,00m²
Localité : Cherbourg-en-Cotentin (50100)
Référence : 50046-1300

Description du bien

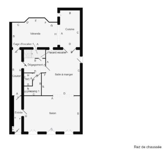
732 - Cherbourg centre; maison de ville de 248m² hab. avec cour;  vous proposant: entrée, séjour/salon 42m², en extension: cuisine avec coin repas dans véranda (env 25m²), dégagement, wc. 1er: palier desservant sdb comp+wc 10m², 2 ch (2x17m²), bureau 10 2e: palier desservant sdb/buanderie + wc 10, 2 ch (16 et 17m²), bureau 10 3e: palier desservant 2 ch (13 et 12m²), 2 pièces non chauffées (2x9m²) cour derrière avec cellier/chaufferie (19m²) 

Performance énergétique

logement extrêmement consommateur d’énergie logement très performant passoire énergétique kg CO /m².an ² consommation (énergie primaire) émissions kWh/m².an 194 41 *
41 kg CO /m².an ² * Dont émissions de gaz à effet de serre peu d’émissions de CO émissions de CO très importantes ² ²

Caractéristiques

Nombre d'étages : 3
État général : A rafraîchir
Exposition : nord-ouest
Situation locative : libre
Nombre de salles de bain : 2
Terrasse : oui

Mandat

Téléphone mandataire : +33233885222
E-mail mandataire : Veuillez utiliser le formulaire de contact ci-dessous ...
Négociateur : Christine ROUIL

Cette annonce m'intéresse

Captcha
* Les champs suivis d'un astérisque sont obligatoires.

Conformément à la loi n°78-17 du 6 janvier 1978 modifiée relative à l'informatique, aux fichiers et aux libertés, et au règlement européen 2016/679, dit Règlement Général sur la Protection des Données (RGPD), vous disposez d'un droit d'accès, de rectification, de suppression des informations qui vous concernent.
Navigateur non pris en charge

Le navigateur Internet Explorer que vous utilisez actuellement ne permet pas d'afficher ce site web correctement.

Nous vous conseillons de télécharger et d'utiliser un navigateur plus récent et sûr tel que Google Chrome, Microsoft Edge, Mozilla Firefox, ou Safari (pour Mac) par exemple.
OK