Annonces immobilières

Toutes les annonces

Réseau des notaires

Nouvelle recherche Cette annonce m'intéresse

Propriété de caractère sur domaine arboré de 8000 m² avec grange et seconde maison d'habitation

Prix : 555 000,00 
Honoraires inclus à la charge du vendeur.
Type de bien : Maison
Pièces : 10 pièces / 6 chambres
Surface : 362,00m²
Localité : Chamoux-sur-Gelon (73390)
Référence : 73012-79

Description du bien

Propriété de caractère sur domaine arboré de plus de 8000 m² avec grange et seconde maison d'habitation.

Au cœur d’un environnement calme et verdoyant, sur la commune de Chamoux-sur-Gelon, découvrez cette propriété de caractère, implantée sur un magnifique terrain arboré de plus de 8000 m² ainsi que ces annexes offrant de multiples projets.


- La maison principale :

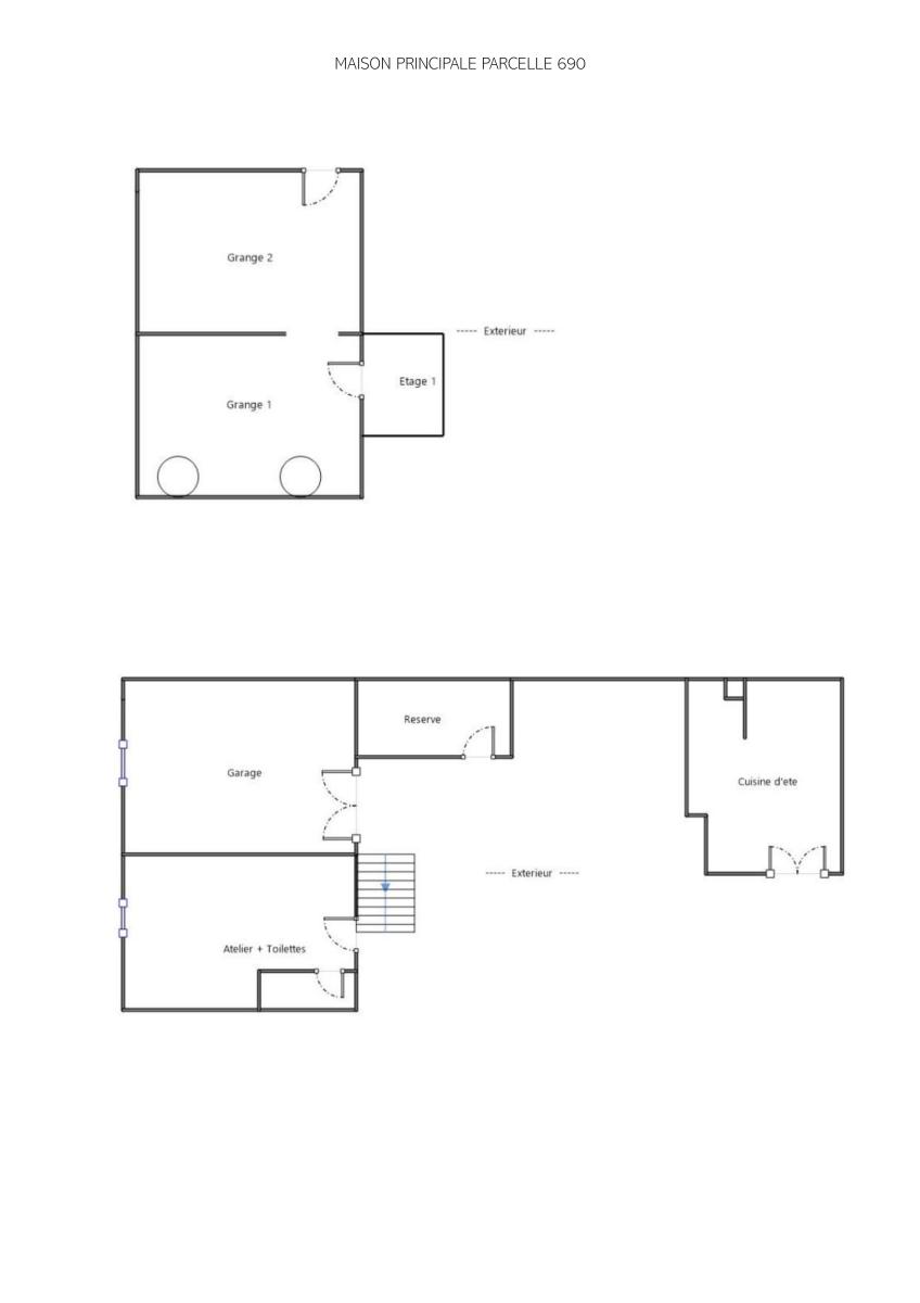
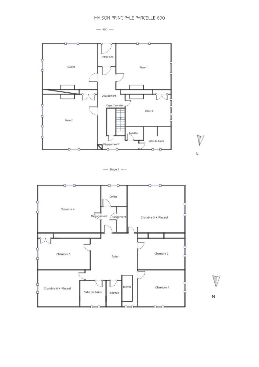
La bâtisse principale, pleine de charme et d’authenticité, développe 271 m² habitables, 503 m2 de surface totale au sol. (voir plan et vidéo QR code dans photos)

Elle se compose de dix pièces réparties entre le rez-de-chaussée et 1er étage, ainsi que de combles non aménagées au 2ème étage, offrant un potentiel d’aménagement supplémentaire (sous réserve des règles d'urbanisme en vigueur) et d'un vaste sous-sol de 160 m².

Ses volumes généreux, sa hauteur sous plafond et son caractère en font une base idéale pour créer une demeure familiale de prestige ou plusieurs espaces de vie.


- Les dépendances :

Grange d'une surface totale au sol de 134 m² (possibilité de transformer en habitation sous réserve des autorisations d'urbanisme à demander)

Garage fermé de 55 m²

Préau

Autres Annexes de 70 et 24 m2


Une Seconde maison d’habitation de 91 m² habitables, à rénover est intégrée au prix de vente. (Bien non soumis au DPE)


Ce domaine offre un cadre naturel privilégié et un potentiel exceptionnel pour de nombreux projets : cette propriété conviendra parfaitement pour y accueillir une grande famille, un projet de location , gîtes pour un complément locatif ou pour les marchands de biens pour une division.


Assainissement secteur : Tout à l'égout

Possibilité d'acquérir d'autres granges en sus.

Performance énergétique

logement extrêmement consommateur d’énergie logement très performant passoire énergétique kg CO /m².an ² consommation (énergie primaire) émissions kWh/m².an 217 16 *
16 kg CO /m².an ² * Dont émissions de gaz à effet de serre peu d’émissions de CO émissions de CO très importantes ² ²

Montant des dépenses théoriques annuelles d’énergie

Coût annuel (min) : 3460.00 €
Coût annuel (max) : 4740.00 €
Année de référence : 2021

Caractéristiques

Nombre d'étages : 2
Cuisine : oui
Nombre de salles de bain : 1
Terrasse : oui
Parking : oui

Commodités

Cave : oui

Mandat

Téléphone mandataire : +33748160479
E-mail mandataire : Veuillez utiliser le formulaire de contact ci-dessous ...
Négociateur : Sophie DERAY

Cette annonce m'intéresse

Captcha
* Les champs suivis d'un astérisque sont obligatoires.

Conformément à la loi n°78-17 du 6 janvier 1978 modifiée relative à l'informatique, aux fichiers et aux libertés, et au règlement européen 2016/679, dit Règlement Général sur la Protection des Données (RGPD), vous disposez d'un droit d'accès, de rectification, de suppression des informations qui vous concernent.
Navigateur non pris en charge

Le navigateur Internet Explorer que vous utilisez actuellement ne permet pas d'afficher ce site web correctement.

Nous vous conseillons de télécharger et d'utiliser un navigateur plus récent et sûr tel que Google Chrome, Microsoft Edge, Mozilla Firefox, ou Safari (pour Mac) par exemple.
OK