Annonces immobilières

Toutes les annonces

Réseau des notaires

Nouvelle recherche Cette annonce m'intéresse

MAISON AVEC BATIMENT INDEPENDANT, GARAGES STOCKAGES SUR PARCELLES DE 1121 M2

Prix : 410 000,00 
Honoraires inclus à la charge du vendeur.
Type de bien : Maison
Pièces : 10 pièces / 5 chambres
Surface : 219,00m²
Terrain : 1 121,00m²
Localité : Fréterive (73250)
Référence : 73012-46

Description du bien

A FRETERIVE, sur 1121 m2 de terrain, superbe potentiel pour CES biens composés de : 

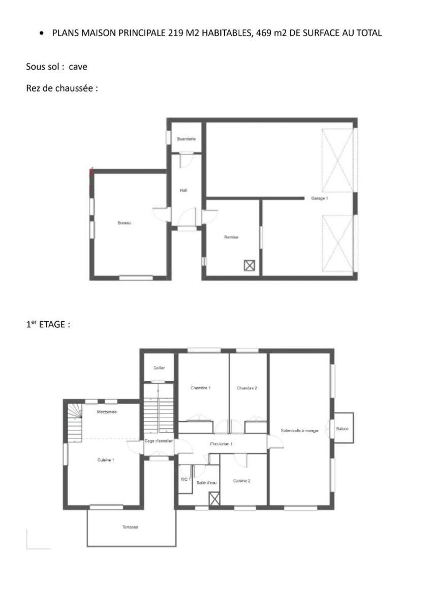
- UNE MAISON de plus de 219 m2 habitables, répartie sur 3 niveaux + sous sol, et desservit par une cage d'escalier commune. (voir plan en photos)
Au rez de chaussée : Une pièce de 28m2, deux grands garages/espaces de stockage (80m2)
Au 1er étage : deux cuisines aménagées dont une avec mezzanine, deux chambres, un double salon salle à manger, une salle d'eau, un WC , terrasse, balcon
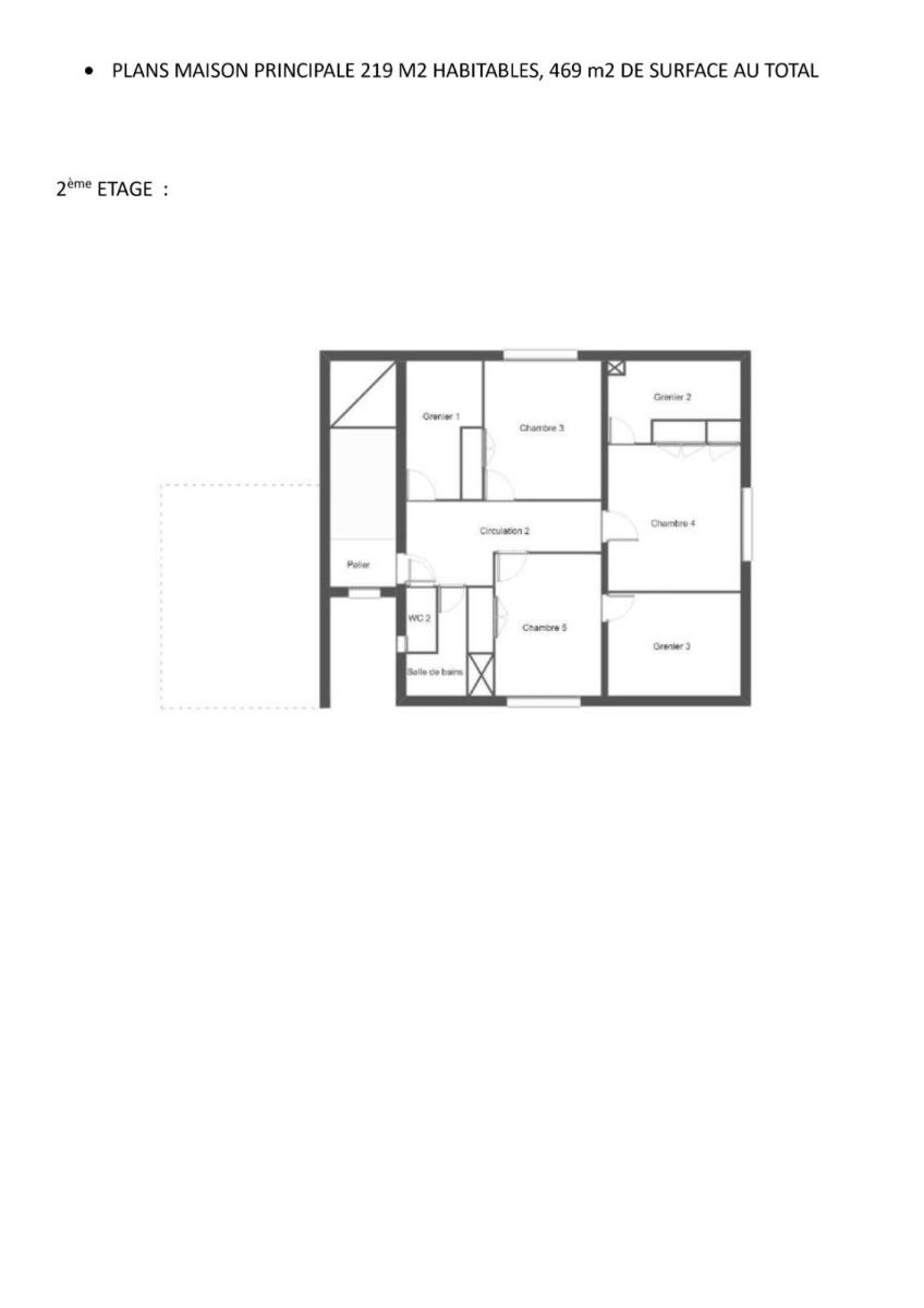
Au 2ème étage : trois chambres, alcôves  non aménagées, salle de bains, WC

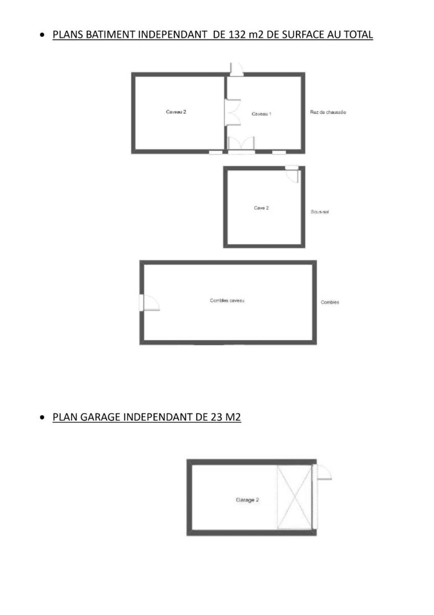
-  UN BATIMENT INDEPENDANT (ancien caveau) de 108 m2 plus cave.
Le bâtiment dispose de deux pièces au rez de chaussée, un sous sol, et des combles non aménagées avec accès indépendant.

- UN GARAGE INDEPENDANT de 23m2

Assainissement individuel à mettre aux normes

Idéal investisseurs, entrepreneurs, familles cherchant de beaux volumes ou souhaitant louer une partie du bien.

. Situation : Situé sur la commune de FRETERIVE, entouré de verdures, avec une belle vue dégagée sur les montagnes et les vignes, à 5 minutes de l'autoroute, 20 minutes d'ALBERTVILLE, 30 minutes de CHAMBERY

Vous pouvez avoir un aperçu extérieur des biens et des alentours via le lien via le QR CODE présent dans les photos.

Logement à consommation énergétique excessive Les informations sur les risques auxquels ce bien est exposé sont disponibles sur le site Géorisques : www. georisques. gouv. fr

Performance énergétique

logement extrêmement consommateur d’énergie logement très performant kg CO /m².an ² consommation (énergie primaire) émissions kWh/m².an 239 74 *
74 kg CO /m².an ² * Dont émissions de gaz à effet de serre peu d’émissions de CO émissions de CO très importantes ² ²
Logement à consommation énergétique excessive

Montant des dépenses théoriques annuelles d’énergie

Coût annuel (min) : 6620.00 €
Coût annuel (max) : 9000.00 €
Année de référence : 2021

Caractéristiques

Nombre d'étages : 3
Cuisine : oui
Nombre de salles de bain : 1
Terrasse : oui
Nombre de balcons : 1
Parking : oui

Commodités

Cave : oui

Mandat

Téléphone mandataire : +33748160479
E-mail mandataire : Veuillez utiliser le formulaire de contact ci-dessous ...
Négociateur : Sophie DERAY

Cette annonce m'intéresse

Captcha
* Les champs suivis d'un astérisque sont obligatoires.

Conformément à la loi n°78-17 du 6 janvier 1978 modifiée relative à l'informatique, aux fichiers et aux libertés, et au règlement européen 2016/679, dit Règlement Général sur la Protection des Données (RGPD), vous disposez d'un droit d'accès, de rectification, de suppression des informations qui vous concernent.
Navigateur non pris en charge

Le navigateur Internet Explorer que vous utilisez actuellement ne permet pas d'afficher ce site web correctement.

Nous vous conseillons de télécharger et d'utiliser un navigateur plus récent et sûr tel que Google Chrome, Microsoft Edge, Mozilla Firefox, ou Safari (pour Mac) par exemple.
OK