Annonces immobilières

Toutes les annonces

Réseau des notaires

Nouvelle recherche Cette annonce m'intéresse

Bastide en pierre

Première offre : 150 000,00 

Vente interactive

Système d'enchères : Ascendantes
Pas de l'offre : 3 000,00 €
Date de fin : 02/12/2025 14:30
Pour plus d'information sur le fonctionnement des ventes interactives, veuillez nous contacter.
Type de bien : Maison
Pièces : 4 pièces / 3 chambres
Surface : 114,00m²
Localité : Fos-sur-Mer (13270)
Référence : 13068-235

Description du bien

--- VENTE EN IMMO INTERACTIF ---

L'Office Notarial VIA NOTARIA vous propose cette belle bastide provençale à rénover à votre goût, dans le quartier des Carabins.

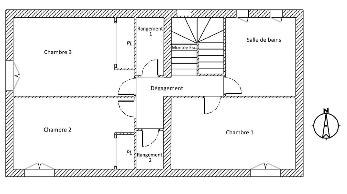
Edifiée sur une parcelle de 580m2 entièrement clôturée, cette bastide de 114m2 élevée d'un étage sur rez-de-chaussée est composée comme suit :
- Au rez-de-chaussée : entrée, séjour, cuisine, cellier, W.C. ;
- A l'étage : trois chambres, dégagement, dressing, salle de bains avec W.C.
Deux garages sont accolés à la bastide.

Les atouts de ce bien : charme de l'ancien (pierres et poutres apparentes) / parcelle piscinable / un W.C. à chaque niveau / deux garages / prix attractif vous permettant d'adapter ce bien à votre goût.

Taxe foncière 2025 : 992,00€

Il s'agit d'une recherche d'acquéreur avec un système d'offres par enchères ascendantes au prix de départ de 150..000,00€. Ce n'est pas une vente aux enchères mais une vente amiable avec signature d'un avant-contrat (compromis) et d'un acte de vente définitif.

Pour pouvoir participer, il faut avoir visité le bien, remis les justificatifs de financement (simulation de crédit bancaire le cas échéant, relevés de comptes bancaire justifiant l'apport), et les pièces d'identité des acquéreurs.

Les visites se font sur rendez-vous vendredi 28 novembre 2025.

Les enchères auront lieux sur le site internet de immo-interactif du 02 décembre 14h30 au 03 décembre 14h30. La demande de participation doit être faire sur ce site internet.

Frais du publicité à la charge de l'acquéreur (à régler le jour de la signature de l'acte de vente) : 228,00€.

Pour plus de renseignements, contactez Julien DUVAUX au 07x48x73x46x57 ou sur julien.duvaux@13068.notaires.fr

Performance énergétique

logement extrêmement consommateur d’énergie logement très performant passoire énergétique kg CO /m².an ² consommation (énergie primaire) émissions kWh/m².an 294 9 *
9 kg CO /m².an ² * Dont émissions de gaz à effet de serre peu d’émissions de CO émissions de CO très importantes ² ²

Montant des dépenses théoriques annuelles d’énergie

Coût annuel (min) : 2530.00 €
Coût annuel (max) : 3470.00 €
Année de référence : 2022

Caractéristiques

Nombre d'étages : 2
État général : A rénover
Exposition : sud

Mandat

Téléphone mandataire : +33748734657
E-mail mandataire : Veuillez utiliser le formulaire de contact ci-dessous ...
Négociateur : Julien DUVAUX

Cette annonce m'intéresse

Captcha
* Les champs suivis d'un astérisque sont obligatoires.

Conformément à la loi n°78-17 du 6 janvier 1978 modifiée relative à l'informatique, aux fichiers et aux libertés, et au règlement européen 2016/679, dit Règlement Général sur la Protection des Données (RGPD), vous disposez d'un droit d'accès, de rectification, de suppression des informations qui vous concernent.
Navigateur non pris en charge

Le navigateur Internet Explorer que vous utilisez actuellement ne permet pas d'afficher ce site web correctement.

Nous vous conseillons de télécharger et d'utiliser un navigateur plus récent et sûr tel que Google Chrome, Microsoft Edge, Mozilla Firefox, ou Safari (pour Mac) par exemple.
OK