Annonces immobilières

Toutes les annonces

Réseau des notaires

Nouvelle recherche Cette annonce m'intéresse

Maison de de Maître d'environ 255 m².

Première offre : 75 000,00 

Vente interactive

Système d'enchères : Ascendantes
Pas de l'offre : 5 000,00 €
Date de fin : 28/03/2026 14:00
Pour plus d'information sur le fonctionnement des ventes interactives, veuillez nous contacter.
Type de bien : Maison
Pièces : 10 pièces
Surface : 255,00m²
Localité : Moussey (88210)
Référence : 54092-139

Description du bien

L’Office Notarial Carré d’Actes à LUDRES vous propose à la vente sous appel d'offre:

Conditions de la vente ; Le bien est présenté en Immo-interactif à la hausse:

- Mise à prix de 75 000 euros (honoraires de négociation inclus)
- Offres suivantes : multiples de 5 000 euros.
- Visite sur rendez-vous
- Réception des offres du vendredi 27 mars 2026 à 14h00 au samedi 28 mars 2026 à 14h00 sur le site Immobilier.notaires®.
- Visite virtuelle disponible sur demande.

Située à proximité de Senones, la commune de Moussey, au 1 Rue du Cornal dessous, se caractérise par un environnement calme et agréable idéal pour maison secondaire familiale ou location saisonnière (possibilité de créer plusieurs appartements).
Maison de Maître, témoin de l'histoire industrielle et artisanale, développant environ 255 m² de surface habitable sur un terrain d'environ 900m², est composée de ;

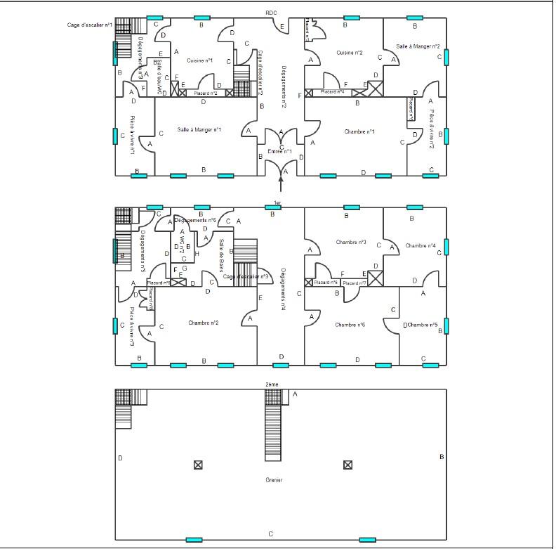
Au rez-de-chaussée :
• Salle d’eau d’environ 2,4 m² comprenant WC, lavabo et chauffe-eau
• Première cuisine d’environ 12 m² avec chauffe-eau et fenêtres bois simple vitrage d’origine
• Seconde cuisine d’environ 13 m², équipée d’un chauffe-eau, radiateur et fenêtres bois double vitrage (2015)
• Salle à manger d’environ 14 m² avec radiateur et fenêtres bois double vitrage (2015)
• Deux pièces d’environ 10 m²
• Deux chambres spacieuse d’environ 21 m² avec radiateur
• Couloir d’environ 18 m² avec insert bois

Au premier étage :
• Couloir d’environ 18 m²
• Chambre d’environ 21 m² avec radiateur
• Chambre en enfilade d’environ 10 m² avec placard
• WC indépendant avec aération naturelle
• Salle de bains comprenant baignoire, bidet, chauffe-eau et radiateur
• Chambre d’environ 13 m² avec lavabo, insert bois et radiateur
• Trois autres chambres d’environ 14 m², 10 m² et 21 m²

Au deuxième étage :
• Grands combles aménageables d’environ 107 m², offrant un potentiel d’extension habitable important.

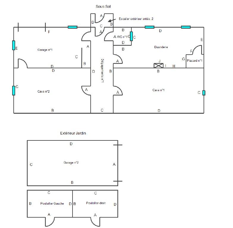
Au sous-sol :
• Garage d’environ 24 m²
• Couloir d’environ 21 m²
• Atelier voûté d’environ 28 m² (hauteur sous plafond 1,85 m)
• Cave voûtée d’environ 29 m² (hauteur sous plafond 2 m)
• Buanderie d’environ 26 m² (hauteur sous plafond 2,15 m)
• WC indépendant

Caractéristiques techniques :
• Maison construite en 1880
• Terrain de 908 m²
• Huisseries bois simple vitrage (sauf 3 fenêtres remplacées en double vitrage en 2015)
• Chauffage principal au gaz
• Production d’eau chaude par chauffe-eaux au gaz
• Inserts bois présents dans certaines pièces
• Raccordement au tout-à-l’égout

Points forts
• Volumes généreux
• Nombreuses chambres (idéal grande famille ou projet locatif)
• Combles aménageables
• Sous-sol complet
• Maison de caractère avec éléments anciens
• Vue dégagée sur les montagnes
• Terrain attenant de belle superficie
• Abri de jardin offrant des espaces de stockage


Environnement et accessibilité :
- Environnement idéal pour les amateurs de nature, promenades et activités de plein air.
- Proximité de communes offrant commerces, écoles et services (ex. Le Petit Raon, Senones).
- Accès routier aisé via la D424, reliant rapidement les communes voisines et les grands axes.

Logement à consommation énergivore (DPE E), audit réalisé.
Informations sur les risques auxquels ce bien est exposé disponibles sur : www.georisques.gouv.fr

Pour tout renseignement complémentaire ou demande de visite, contactez notre office notarial.

Performance énergétique

logement extrêmement consommateur d’énergie logement très performant passoire énergétique kg CO /m².an ² consommation (énergie primaire) émissions kWh/m².an 285 63 *
63 kg CO /m².an ² * Dont émissions de gaz à effet de serre peu d’émissions de CO émissions de CO très importantes ² ²

Mandat

Téléphone mandataire : +33760488231
E-mail mandataire : Veuillez utiliser le formulaire de contact ci-dessous ...
Négociateur : Odem A.

Cette annonce m'intéresse

Captcha
* Les champs suivis d'un astérisque sont obligatoires.

Conformément à la loi n°78-17 du 6 janvier 1978 modifiée relative à l'informatique, aux fichiers et aux libertés, et au règlement européen 2016/679, dit Règlement Général sur la Protection des Données (RGPD), vous disposez d'un droit d'accès, de rectification, de suppression des informations qui vous concernent.
Navigateur non pris en charge

Le navigateur Internet Explorer que vous utilisez actuellement ne permet pas d'afficher ce site web correctement.

Nous vous conseillons de télécharger et d'utiliser un navigateur plus récent et sûr tel que Google Chrome, Microsoft Edge, Mozilla Firefox, ou Safari (pour Mac) par exemple.
OK