Annonces immobilières

Toutes les annonces

Réseau des notaires

Nouvelle recherche Cette annonce m'intéresse

Vente Appartement à Asnières-sur-Seine

Première offre : 330 750,00 

Vente interactive

Système d'enchères : Ascendantes
Pas de l'offre : 5 000,00 €
Date de fin : 09/04/2026 13:00
Pour plus d'information sur le fonctionnement des ventes interactives, veuillez nous contacter.
Type de bien : Appartement
Pièces : 3 pièces / 1 chambre
Surface : 62,88m²
Localité : Asnières-sur-Seine (92600)
Référence : 75084-198

Description du bien

A VENDRE PAR NOTAIRE
Vente Immo-interactive (appel d’offres sur le site immobilier.notaires)

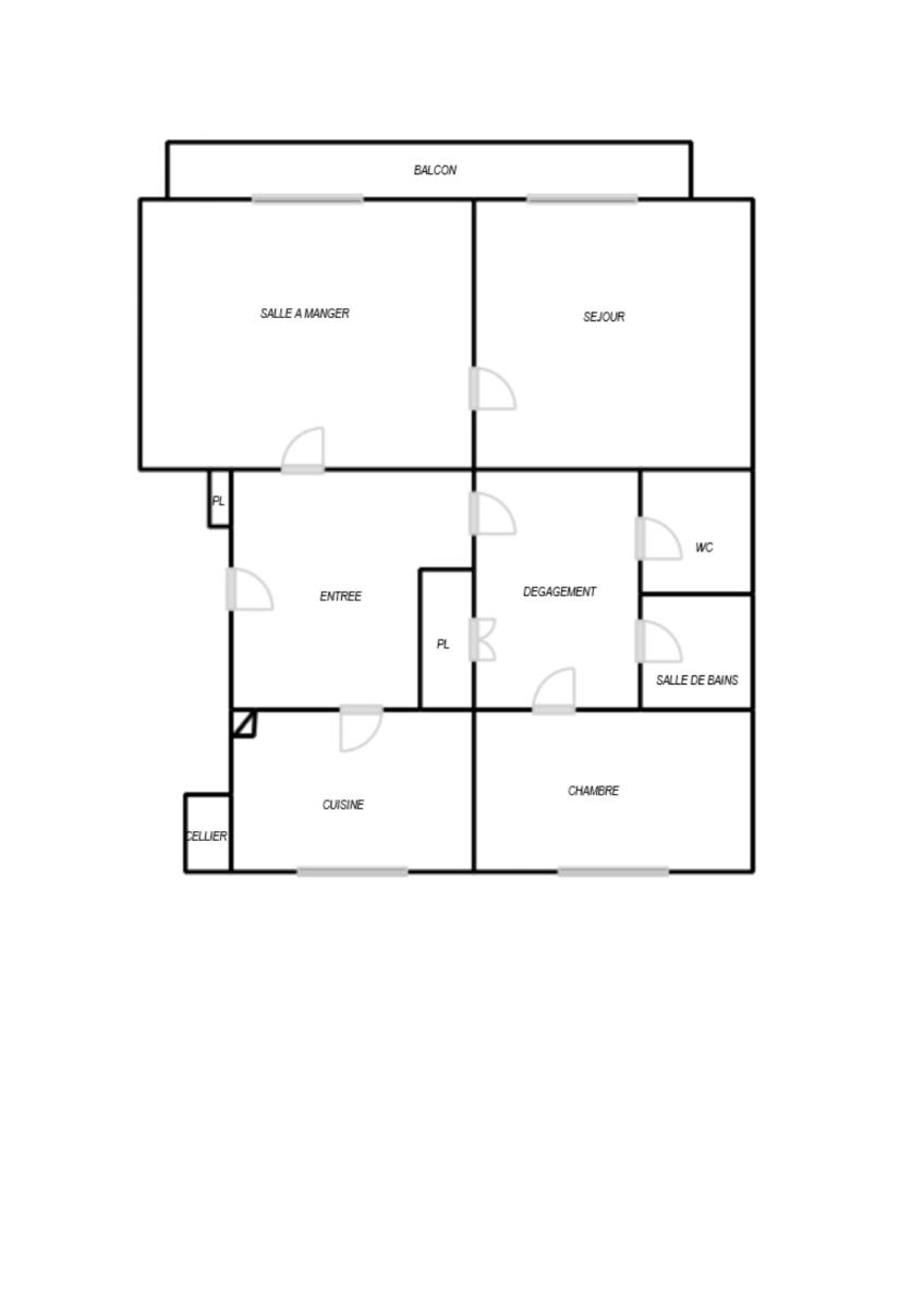
Situé dans un immeuble bien entretenu datant de 1964, cet appartement traversant de 2/3 pièces se trouve au 1er étage à droite avec ascenseur.
Il se compose d’une entrée avec placard, d’un double séjour lumineux ouvrant sur une agréable terrasse côté cour, exposée sud-est.
La cuisine, située côté rue, dispose d’un office ainsi que d’un vide-ordures.
Un couloir avec rangements dessert des toilettes indépendantes, une salle de bain et une chambre avec placard, orientée nord-ouest côté rue.

L’appartement est actuellement revêtu de moquette posée sur parquet existant.
Le chauffage est collectif et l’eau chaude est produite par un ballon électrique individuel.
Les fenêtres sont en double vitrage PVC et les volets sont en bois coulissants mécaniques.
Possibilité de créer une deuxième chambre.

Une cave en sous-sol complète ce bien.
Un emplacement de parking extérieur dans la cour est également inclus.

Le DPE est en classe E
Charges de copropriété : 712.23€ / trimestre
Taxe foncière : 1021€


L’immeuble est situé dans un quartier calme et pavillonnaire "Alma-Philosophes", à environ 8 minutes à pied de la gare d’Asnières-sur-Seine.

Performance énergétique

logement extrêmement consommateur d’énergie logement très performant passoire énergétique kg CO /m².an ² consommation (énergie primaire) émissions kWh/m².an 296 49 *
49 kg CO /m².an ² * Dont émissions de gaz à effet de serre peu d’émissions de CO émissions de CO très importantes ² ²

Caractéristiques

Nombre d'étages : 4
État général : A rénover
Situation locative : libre
Nombre de salles de bain : 1
Nombre de balcons : 1
Parking : oui

Commodités

Cave : oui

Mandat

Téléphone mandataire : +33636051505
E-mail mandataire : Veuillez utiliser le formulaire de contact ci-dessous ...
Négociateur : Victoire De VARINE-BOHAN

Cette annonce m'intéresse

Captcha
* Les champs suivis d'un astérisque sont obligatoires.

Conformément à la loi n°78-17 du 6 janvier 1978 modifiée relative à l'informatique, aux fichiers et aux libertés, et au règlement européen 2016/679, dit Règlement Général sur la Protection des Données (RGPD), vous disposez d'un droit d'accès, de rectification, de suppression des informations qui vous concernent.
Navigateur non pris en charge

Le navigateur Internet Explorer que vous utilisez actuellement ne permet pas d'afficher ce site web correctement.

Nous vous conseillons de télécharger et d'utiliser un navigateur plus récent et sûr tel que Google Chrome, Microsoft Edge, Mozilla Firefox, ou Safari (pour Mac) par exemple.
OK