Annonces immobilières

Toutes les annonces

Réseau des notaires

Nouvelle recherche Cette annonce m'intéresse

A vendre : Immeuble - 150m² - Tréméoc (29120)

Prix : 399 000,00 
Dont honoraires 19 000,00 € TTC inclus (5,00 %) à la charge de l'acquéreur, soit 380 000 € hors honoraires.
Type de bien : Immeuble
Surface : 150,00m²
Localité : Tréméoc (29120)
Référence : 105-M-10-24-COPIE-29152

Description du bien

Etude NOTAIRE PARTENAIRE Quimper
IDEAL INVESTISSEUR ou FAMILLE souhaitant avoir son indépendance entre parents et enfants.
TREMEOC, ville située entre Quimper et Plages.
ENSEMBLE IMMOBILIER de type longère de charme de 150m², divisée en 2 habitations, sur 5260m² de terrain au total.
Les 2 habitations sont actuellement sous bail.
La 1ère maison de 97m² est loué non meublée avec bail de 3 ans.
La 2e maison de 52m² est loué meublée avec bail de 1 an.

Chaque Habitation possède son espace extérieur avec terrasse et jardin privatif d’environ 400m², ainsi que des espaces pour garer les véhicules.
La maison à été entièrement rénovée dans son ensemble en 2010 (toiture – isolation – sols – peintures – électricité – plomberie - cloisons – cuisines - salles d’eau…) et une extension à été construite pour agrandir la pièce de vie d’une des maisons.
Chaque maison possède ses propres compteurs indépendants et il n'y a pas de Syndic de copropriété.

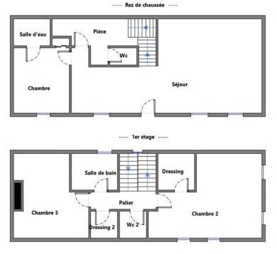
La première maison de 97m² habitables possède au RDC une cuisine ouverte sur le séjour avec une arrière-cuisine, un wc, une chambre et sa salle d’eau. L’étage ouvre sur 2 chambres avec chacune un coin dressing, un bureau, un wc et une salle de bain.

La deuxième maison de 52m² habitables possède une cuisine ouverte sur le séjour en RDC ainsi que la salle d’eau et un wc séparé, et une chambre à l’étage avec coin dressing.

Dans le prolongement de la maison se situe un terrain d’environ 4000m² situé en zone naturelle. Il est plat et pourrait facilement être loué également pour des chevaux ou des personnes en mal d’espaces verts …
L'emplacement est idéal car les Plages de l’Ile Tudy sont 10kms, pour les balades, et Quimper est à 13kms pour le travail...

Performance énergétique

logement extrêmement consommateur d’énergie logement très performant passoire énergétique kg CO /m².an ² consommation (énergie primaire) émissions kWh/m².an 206 6 *
6 kg CO /m².an ² * Dont émissions de gaz à effet de serre peu d’émissions de CO émissions de CO très importantes ² ²

Montant des dépenses théoriques annuelles d’énergie

Coût annuel (min) : 1230.00 €
Coût annuel (max) : 1710.00 €
Année de référence : 2021

Caractéristiques

État général : Bon
Situation locative : libre
Parking : oui

Mandat

Téléphone mandataire : +33298941841
E-mail mandataire : Veuillez utiliser le formulaire de contact ci-dessous ...
Négociateur : Ana AMADO

Cette annonce m'intéresse

Captcha
* Les champs suivis d'un astérisque sont obligatoires.

Conformément à la loi n°78-17 du 6 janvier 1978 modifiée relative à l'informatique, aux fichiers et aux libertés, et au règlement européen 2016/679, dit Règlement Général sur la Protection des Données (RGPD), vous disposez d'un droit d'accès, de rectification, de suppression des informations qui vous concernent.
Navigateur non pris en charge

Le navigateur Internet Explorer que vous utilisez actuellement ne permet pas d'afficher ce site web correctement.

Nous vous conseillons de télécharger et d'utiliser un navigateur plus récent et sûr tel que Google Chrome, Microsoft Edge, Mozilla Firefox, ou Safari (pour Mac) par exemple.
OK