Annonces immobilières

Toutes les annonces

Réseau des notaires

Nouvelle recherche Cette annonce m'intéresse

NEUILLY SUR SEINE - ILE DE LA JATTE - 5 PIECES 110 M². TERRASSE 7 M². ETAGE ELEVE.

Prix : 1 455 000,00 
Dont honoraires 53 837,00 € TTC inclus (3,84 %) à la charge de l'acquéreur, soit 1 401 163 € hors honoraires.
Type de bien : Appartement
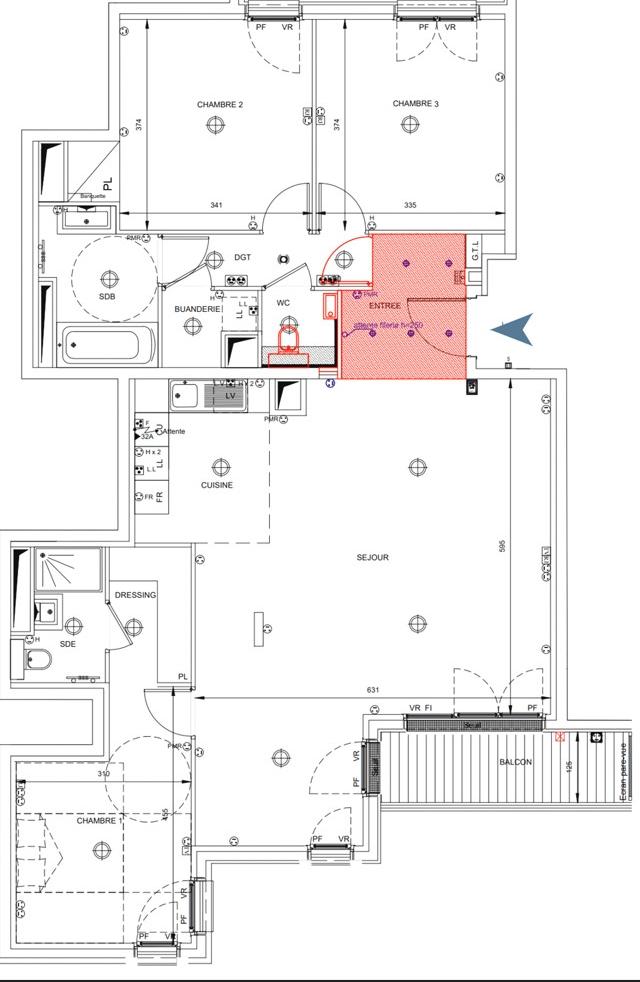
Pièces : 6 pièces / 4 chambres
Surface : 109,00m²
Localité : Neuilly-sur-Seine (92200)
Référence : 92010-1332

Description du bien

NEUILLY SUR SEINE - ILE DE LA JATTE - 5 PIECES. 4EME ETAGE - BALCON/TERRASSE. IMMEUBLE RECENT DE GRAND STANDING.
APPARTEMENT TRAVERSANT. ETAT NEUF. VOLUMES GENEREUX (HAUTEUR SOUS PLAFOND 2,65 m). 110 M² (109 m² en loi carrez).
DECORE PAR ARCHITECTE/DESIGNER AVEC DES PRESTATIONS CONTEMPORAINES ET PREMIUM.
TRIPLE EXPOSITION, avec des vues dégagées sur jardins et larges bassins d’agrément environnants, ce bien comprend :
GRAND DOUBLE SEJOUR 53 m² avec une entrée et un espace ouvert Cuisine (à aménager) et donnant sur un large BALCON/LOGGIA de 7,02 m².
SUITE PARENTALE 18,54 m² avec dressing, Salle de douche avec WC, 2 autres grandes Chambres (12,49 m² et 13,6 m²), une salle de bains, un WC, une Buanderie et rangements.
NOMBREUX PLACARDS AMENAGES. POSSIBILITE 4ème CHAMBRE OU ESPACE BUREAU. Système Domotique intégré. Volets électrique. Huisseries en aluminium.
CHAUFFAGE COLLECTIF au sol. EAU CHAUDE COLLECTIVE.
COPROPRIETE 212 Lots Principaux/ 128 Copropriétaires. Charges : 2735 €/an - Pas de Procédure.
DPE classé B (57) et GES classé B (10).
LE BIEN BENEFICIE DE FINITIONS PREMIUM : parquet en chêne massif dans l'entrée, le salon et les chambres, faïence toute hauteur et carrelage dans les salles d'eau, spots LED en faux plafond.
ETABLISSEMENTS SCOLAIRES A PROXIMITE : Sectorisation Lycée Pasteur, Etablissement public réputé, écoles publiques maternelles et primaires, établissements privés Marymount International School et Institution Saint Dominique.
Un bel emplacement de PARKING, avec possibilité borne de recharge pour véhicule électrique complète ce bien. Un deuxième emplacement possible en supplément par le propriétaire du présent bien.
Les informations sur les risques auxquels ce bien est exposé sont disponibles sur : georisques.gouv.fr.

Performance énergétique

logement extrêmement consommateur d’énergie logement très performant passoire énergétique kg CO /m².an ² consommation (énergie primaire) émissions kWh/m².an 57 10 *
10 kg CO /m².an ² * Dont émissions de gaz à effet de serre peu d’émissions de CO émissions de CO très importantes ² ²

Caractéristiques

Nombre d'étages : 6
État général : Bon
Nombre de salles de bain : 1
Terrasse : oui
Parking : oui

Mandat

Téléphone mandataire : +33660124411
E-mail mandataire : Veuillez utiliser le formulaire de contact ci-dessous ...
Négociateur : Vincent GUIRAUD

Cette annonce m'intéresse

Captcha
* Les champs suivis d'un astérisque sont obligatoires.

Conformément à la loi n°78-17 du 6 janvier 1978 modifiée relative à l'informatique, aux fichiers et aux libertés, et au règlement européen 2016/679, dit Règlement Général sur la Protection des Données (RGPD), vous disposez d'un droit d'accès, de rectification, de suppression des informations qui vous concernent.
Navigateur non pris en charge

Le navigateur Internet Explorer que vous utilisez actuellement ne permet pas d'afficher ce site web correctement.

Nous vous conseillons de télécharger et d'utiliser un navigateur plus récent et sûr tel que Google Chrome, Microsoft Edge, Mozilla Firefox, ou Safari (pour Mac) par exemple.
OK