Angers – Bd Jacques Millot
262 500 € HAI (dont 12 500 € d’honoraires – 5 % TTC, charge acquéreur)
Surface Carrez : 85,95 m²
DPE : D (215) – GES : D (43)
3 chambres – Balcon – Cave – Ascenseur
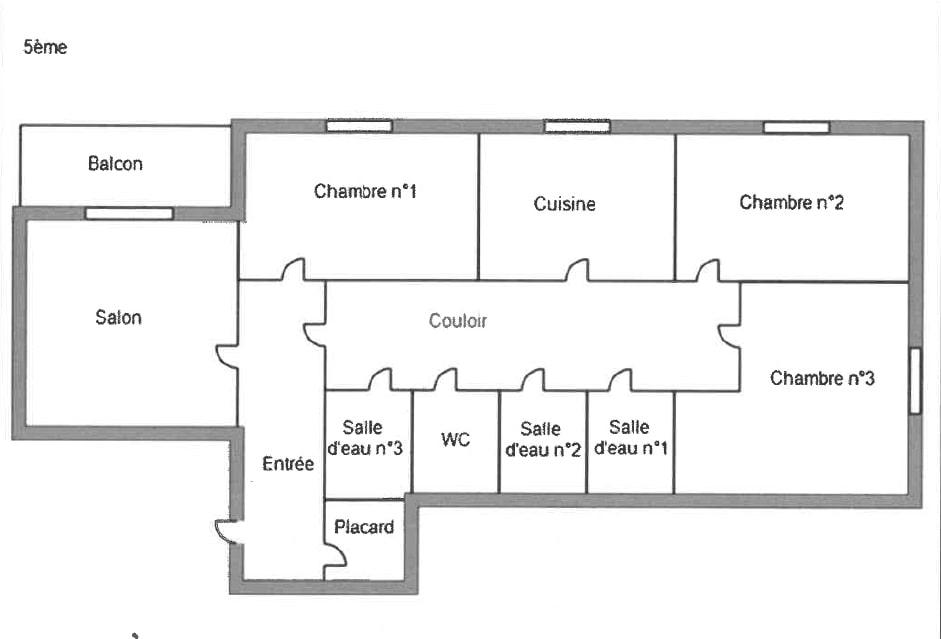
Spacieux appartement T4 de 85,95 m² situé au 5ᵉ étage d’une résidence de 1975 avec ascenseur. Idéal pour de la colocation ou pour une résidence principale familiale.
Le bien se compose d’une entrée, d’un salon lumineux donnant accès au balcon, d’une cuisine aménagée, d’un couloir, ainsi que de trois chambres (10,84 m² – 11,83 m² – 13,32 m²), chacune disposant d'une salle d’eau privative. Un WC séparé complète l’ensemble.
Atouts :
• Balcon de 5 m²
• Cave privative
• Huisseries neuves (2022)
Nous avons recours à des cookies techniques pour assurer le bon fonctionnement du site, nous utilisons également des cookies soumis à votre consentement pour collecter des statistiques de visite. Cliquez ci-dessous sur « ACCEPTER » pour accepter le dépôt de l'ensemble des cookies ou sur « CONFIGURER » pour choisir quels cookies nécessitant votre consentement seront déposés (cookies statistiques), avant de continuer votre visite du site. Plus d'informations