Annonces immobilières

Toutes les annonces

Réseau des notaires

Nouvelle recherche Cette annonce m'intéresse

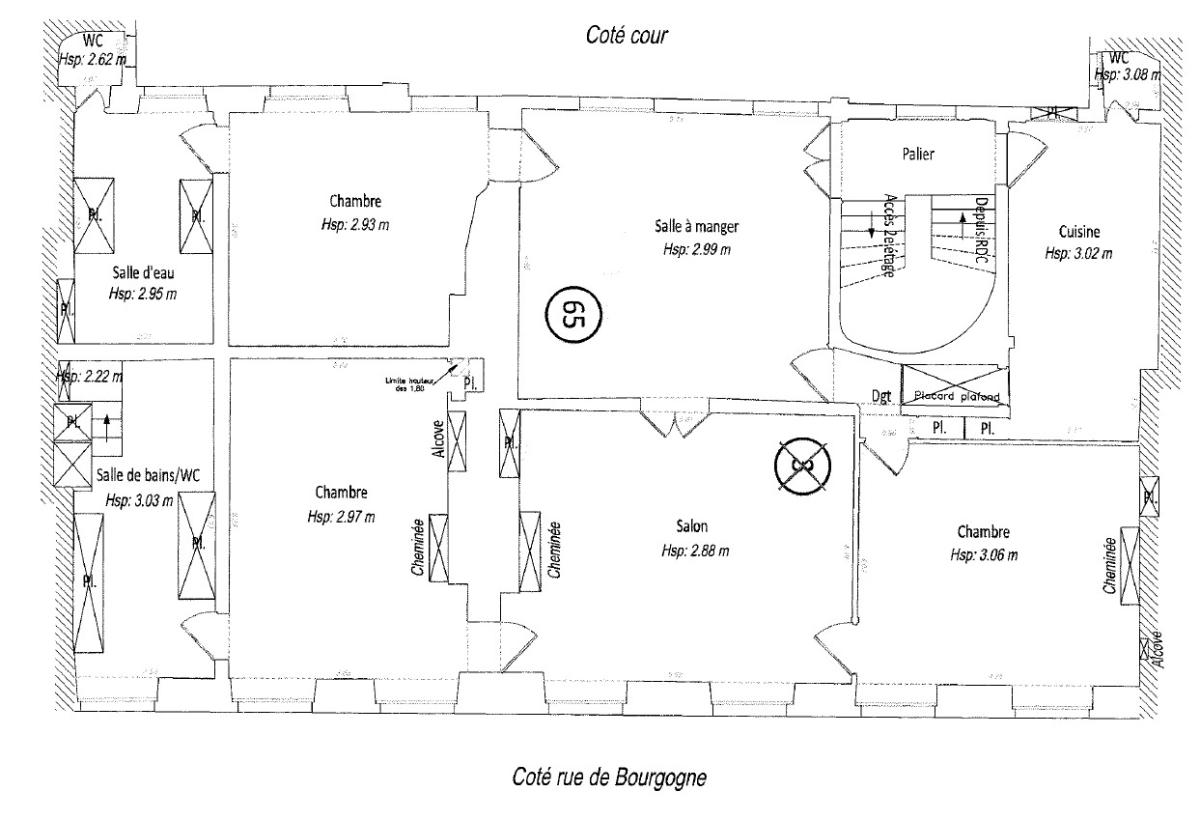
75007 - Invalides / Rue du Bourgogne - Appartement de 148 m² - 3 chambres

Prix : 2 700 000,00 
Dont honoraires 79 000,00 € TTC inclus (3,01 %) à la charge de l'acquéreur, soit 2 621 000 € hors honoraires.
Type de bien : Appartement
Pièces : 5 pièces / 3 chambres
Surface : 148,15m²
Localité : Paris 7e Arrondissement (75007)
Référence : 75070-31

Description du bien

Idéalement situé Rue de Bourgogne, nous vous proposons un magnifique appartement familiale et de réception de 148 m² situé au 1er étage d'un bel immeuble de 1780.
Un lieux chargé d'histoire, Il a été l'appartement d'un célèbre peintre français.
Alliant charme de l'ancien et modernité, il se compose d'un séjour, d'une salle à manger, d'une cuisine dinatoire séparée , de trois vastes chambres dont deux avec leurs salles d'eau, dressing et toilettes, et des toilettes séparées.
Le charme de l'ancien a été conservé : parquets d'époque, moulures et cheminées fonctionnelles.
Aucune perte de place. Hauteur sous plafond de 3 mètres.
Une cave sécurisée complète ce bien.

Performance énergétique

logement extrêmement consommateur d’énergie logement très performant passoire énergétique kg CO /m².an ² consommation (énergie primaire) émissions kWh/m².an 202 35 *
35 kg CO /m².an ² * Dont émissions de gaz à effet de serre peu d’émissions de CO émissions de CO très importantes ² ²

Montant des dépenses théoriques annuelles d’énergie

Coût annuel (min) : 2625.00 €
Coût annuel (max) : 3551.00 €
Année de référence : 2021

Caractéristiques

Nombre d'étages : 1
État général : Bon
Situation locative : libre
Cuisine : oui
Nombre de salles de bain : 1

Commodités

Cave : oui

Mandat

Téléphone mandataire : +33698666186
E-mail mandataire : Veuillez utiliser le formulaire de contact ci-dessous ...
Négociateur : Pierre-Emmanuel POULAIN

Cette annonce m'intéresse

Captcha
* Les champs suivis d'un astérisque sont obligatoires.

Conformément à la loi n°78-17 du 6 janvier 1978 modifiée relative à l'informatique, aux fichiers et aux libertés, et au règlement européen 2016/679, dit Règlement Général sur la Protection des Données (RGPD), vous disposez d'un droit d'accès, de rectification, de suppression des informations qui vous concernent.
Navigateur non pris en charge

Le navigateur Internet Explorer que vous utilisez actuellement ne permet pas d'afficher ce site web correctement.

Nous vous conseillons de télécharger et d'utiliser un navigateur plus récent et sûr tel que Google Chrome, Microsoft Edge, Mozilla Firefox, ou Safari (pour Mac) par exemple.
OK