Annonces immobilières

Toutes les annonces

Réseau des notaires

Nouvelle recherche Cette annonce m'intéresse

BOULOGNE-BILLANCOURT - PONT DE SEVRES - APPARTEMENT 4 PIECES - ETAGE ELEVES - LARGES BALCONS

Prix : 799 000,00 
Dont honoraires 36 596,00 € TTC inclus (4,80 %) à la charge de l'acquéreur, soit 762 404 € hors honoraires.
Type de bien : Appartement
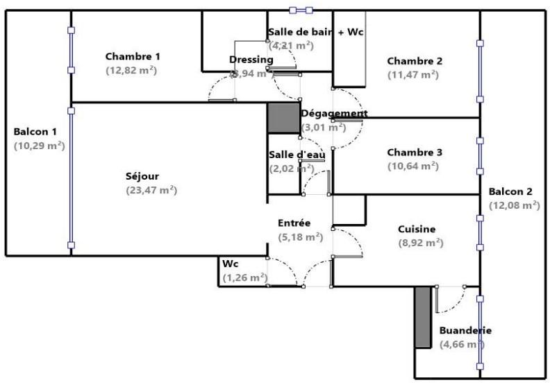
Pièces : 4 pièces / 3 chambres
Surface : 91,60m²
Localité : Boulogne-Billancourt (92100)
Référence : 75025-64

Description du bien

BOULOGNE-BILLANCOURT - PONT DE SEVRES - APPARTEMENT 4 PIECES A RENOVER - ETAGE ELEVES - LARGES BALCONS
Dans le quartier Silly-Gallieni, à proximité des stations de métro Pont de Sèvres et Billancourt, dans une résidence de standing, sécurisée et arborée, nous vous proposons un appartement traversant avec de larges balcons à rénover à fort potentiel.
Au sixième étage par ascenseur, l'appartement est composé d'une entrée, un séjour donnant sur un large balcon filant de 12 m², une cuisine avec office, trois chambre, donnant également sur un larges balcon, dont une suite parentale avec salle de bains et dressing, une salle de douche.
Une cave complète ce bien .
Possibilité d'acquérir un emplacement de parking (30 000 €).
Appartement lumineux avec vue dégagée.
Charges de copropriété annuelles : 4.680€
DPE : G/C
Taxe foncière : 1.301 €
Copropriété de 151 lots principaux.
Visite sur rendez-vous

Performance énergétique

logement extrêmement consommateur d’énergie logement très performant kg CO /m².an ² consommation (énergie primaire) émissions kWh/m².an 453 18 *
18 kg CO /m².an ² * Dont émissions de gaz à effet de serre peu d’émissions de CO émissions de CO très importantes ² ²
Logement à consommation énergétique excessive

Montant des dépenses théoriques annuelles d’énergie

Coût annuel (min) : 3780.00 €
Coût annuel (max) : 5170.00 €
Année de référence : 2023

Caractéristiques

État général : A rénover
Situation locative : libre
Nombre de salles de bain : 1
Nombre de balcons : 1
Parking : oui

Commodités

Cave : oui

Mandat

Téléphone mandataire : +33613443890
E-mail mandataire : Veuillez utiliser le formulaire de contact ci-dessous ...
Négociateur : Laura PARIS

Cette annonce m'intéresse

Captcha
* Les champs suivis d'un astérisque sont obligatoires.

Conformément à la loi n°78-17 du 6 janvier 1978 modifiée relative à l'informatique, aux fichiers et aux libertés, et au règlement européen 2016/679, dit Règlement Général sur la Protection des Données (RGPD), vous disposez d'un droit d'accès, de rectification, de suppression des informations qui vous concernent.
Navigateur non pris en charge

Le navigateur Internet Explorer que vous utilisez actuellement ne permet pas d'afficher ce site web correctement.

Nous vous conseillons de télécharger et d'utiliser un navigateur plus récent et sûr tel que Google Chrome, Microsoft Edge, Mozilla Firefox, ou Safari (pour Mac) par exemple.
OK