Annonces immobilières

Toutes les annonces

Réseau des notaires

Nouvelle recherche Cette annonce m'intéresse

T3 de 91m2 avec balconnet

Prix : 730 000,00 
Dont honoraires 30 000,00 € TTC inclus (4,29 %) à la charge de l'acquéreur, soit 700 000 € hors honoraires.
Type de bien : Appartement
Pièces : 4 pièces / 2 chambres
Surface : 91,00m²
Localité : Paris 12e Arrondissement (75012)
Référence : 75038-113

Description du bien

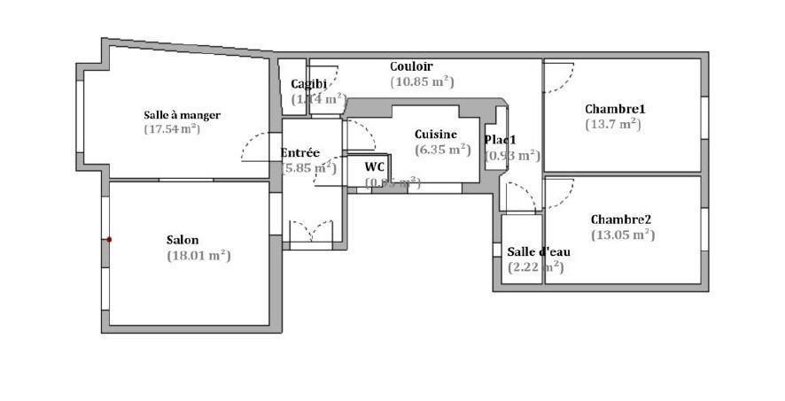
Avenue Saint-Mandé – Paris 12 Spécial Investisseur – Appartement Vendu Loué Situé au 4e étage avec ascenseur d’un immeuble de style haussmannien, cet appartement de 91 m², à rafraîchir, dispose d’un balconnet donnant sur rue. Ce bien se compose de 4 pièces : une entrée, un double séjour lumineux avec balcon exposé sud, une cuisine, deux chambres au calme sur cour, une salle d’eau, un WC séparé, un débarras. Une cave complète ce bien. Chauffage individuel au gaz Bien vendu occupé : loyer de 1 807 € hors charges, locataire âgée de 90 ans Charges annuelles 2024 : 2 968 € (dont 1 565 € récupérables) Taxe foncière 2024 : 1 602 € À proximité immédiate du métro Picpus, de la rue du Rendez-Vous et de ses commerces, ainsi que de Nation. Les informations sur les risques auxquels ce bien est exposé sont disponibles sur le site Géorisques : www. georisques. gouv. fr

Performance énergétique

logement extrêmement consommateur d’énergie logement très performant passoire énergétique kg CO /m².an ² consommation (énergie primaire) émissions kWh/m².an 226 49 *
49 kg CO /m².an ² * Dont émissions de gaz à effet de serre peu d’émissions de CO émissions de CO très importantes ² ²

Montant des dépenses théoriques annuelles d’énergie

Coût annuel (min) : 1840.00 €
Coût annuel (max) : 2530.00 €
Année de référence : 2025

Caractéristiques

Nombre de balcons : 1

Commodités

Cave : oui

Mandat

Téléphone mandataire : +33785559924
E-mail mandataire : Veuillez utiliser le formulaire de contact ci-dessous ...
Négociateur : Maxime CASTELLIER

Cette annonce m'intéresse

Captcha
* Les champs suivis d'un astérisque sont obligatoires.

Conformément à la loi n°78-17 du 6 janvier 1978 modifiée relative à l'informatique, aux fichiers et aux libertés, et au règlement européen 2016/679, dit Règlement Général sur la Protection des Données (RGPD), vous disposez d'un droit d'accès, de rectification, de suppression des informations qui vous concernent.
Navigateur non pris en charge

Le navigateur Internet Explorer que vous utilisez actuellement ne permet pas d'afficher ce site web correctement.

Nous vous conseillons de télécharger et d'utiliser un navigateur plus récent et sûr tel que Google Chrome, Microsoft Edge, Mozilla Firefox, ou Safari (pour Mac) par exemple.
OK