PONTCHARRA, Spacieux T4 en duplex de plus de 90 m2 carrez, au 3ème étage avec ascenseur, terrasse, places de stationnement collectif réservées aux copropriétaires et garage privatif en supplément.
L'appartement se trouve dans une copropriété très agréable et parfaitement entretenue, sécurisée, dans le centre tout en bénéficiant du calme où il fait bon d'y vivre.
Il est composé ainsi :
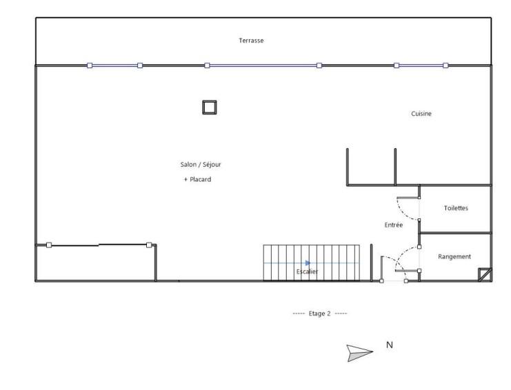
Une entrée
Un espace pour buanderie
Une cuisine ouverte sur séjour avec placards de rangement
Une terrasse avec une très belle vue sur les montagnes
Un WC
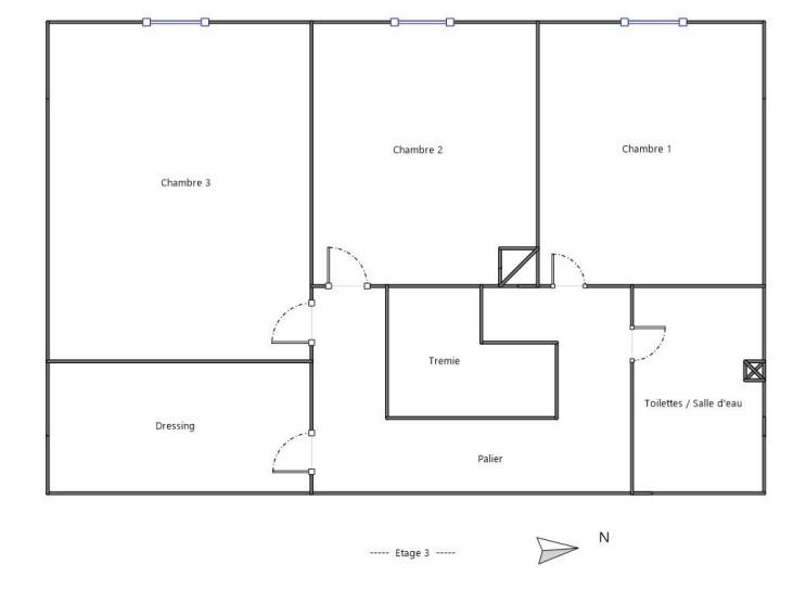
A l'étage :
Trois chambres spacieuses de plus de 11, 12 et 14m2
Un dressing
Une salle de bains avec WC
Les points forts de l'appartement :
Installation d'une chaudière collective neuve votée et payée par les propriétaires actuels prévue pour cette année - Amélioration du DPE à venir et baisse de la consommation énergétique - Aucun coût pour le nouvel acquéreur
Accès à l'ensemble des commerces, bus, gare, piscine, écoles à pied tout en bénéficiant du calme
Terrasse couverte avec une très belle vue sur les montagnes - exposition ouest
Copropriété vraiment agréable et attachée au bien vivre ensemble ...
Appartement spacieux et lumineux en duplex
Facilité de stationnement
Prochaine assemblée générale avril - aucun travaux prévu à l'ordre du jour
En cas d'acquéreurs pour de l'investissement locatif, nous avons des personnes souhaitant absolument intégrer cette copropriété à vous proposer si vous le souhaitez.
Charges trimestrielles actuelles d'environ 800 euros ( chauffage, eau chaude, eau froide intégrées dans les charges)
Vous trouverez tous les commerces, piscine, gare , Bus, à proximité immédiate.
A 15 minutes de CHAMBERY en train, 25 minutes en voiture
A 30 minutes de GRENOBLE en train, 35 minutes en voiture
Performance énergétique
Montant des dépenses théoriques annuelles d’énergie
Coût annuel (min) : 1180.00 €
Coût annuel (max) : 1640.00 €
Année de référence : 2021
Caractéristiques
État général :
Bon
Exposition :
ouest
Nombre de salles de bain :
1
Terrasse :
oui
Mandat
Téléphone mandataire :
+33748160479
E-mail mandataire :
Veuillez utiliser le formulaire de contact ci-dessous ...
Nous avons recours à des cookies techniques pour assurer le bon fonctionnement du site, nous utilisons également des cookies soumis à votre consentement pour collecter des statistiques de visite. Cliquez ci-dessous sur « ACCEPTER » pour accepter le dépôt de l'ensemble des cookies ou sur « CONFIGURER » pour choisir quels cookies nécessitant votre consentement seront déposés (cookies statistiques), avant de continuer votre visite du site. Plus d'informations