Appartement familial de caractère sur la rue de la Goutte d’Or
Situé au 5ᵉ étage avec ascenseur d’un bel immeuble du Boulevard Barbès, cet appartement se distingue par ses volumes généreux, sa luminosité et son agencement fonctionnel.
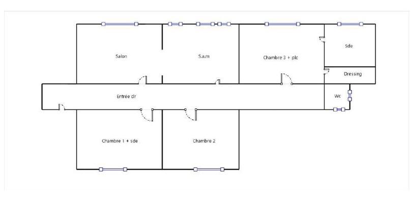
L’entrée spacieuse dessert un salon convivial et une cuisine indépendante. L’espace nuit comprend deux chambres, chacune avec sa salle de douche attenante, ainsi qu’un bureau polyvalent idéal pour le télétravail. L’appartement bénéficie d’une exposition complète sur la rue de la Goutte d'Or, assurant une belle luminosité et un agréable cadre de vie.
Une cave vient compléter ce bien, offrant un espace de rangement supplémentaire.
Un appartement alliant confort, fonctionnalité et charme, parfait pour une famille ou pour ceux qui recherchent un logement lumineux dans un quartier vivant.
Performance énergétique
Montant des dépenses théoriques annuelles d’énergie
Coût annuel (min) : 1780.00 €
Coût annuel (max) : 2480.00 €
Année de référence : 2023
Caractéristiques
État général :
Bon
Exposition :
sud
Cuisine :
oui
Commodités
Cave :
oui
Mandat
Téléphone mandataire :
+33608027578
E-mail mandataire :
Veuillez utiliser le formulaire de contact ci-dessous ...
Nous avons recours à des cookies techniques pour assurer le bon fonctionnement du site, nous utilisons également des cookies soumis à votre consentement pour collecter des statistiques de visite. Cliquez ci-dessous sur « ACCEPTER » pour accepter le dépôt de l'ensemble des cookies ou sur « CONFIGURER » pour choisir quels cookies nécessitant votre consentement seront déposés (cookies statistiques), avant de continuer votre visite du site. Plus d'informations