Annonces immobilières

Toutes les annonces

Réseau des notaires

Nouvelle recherche Cette annonce m'intéresse

Appartement T3 - LES HALLES

Prix : 203 318,00 
Dont honoraires 8 918,00 € TTC inclus (4,59 %) à la charge de l'acquéreur, soit 194 400 € hors honoraires.
Type de bien : Appartement
Pièces : 3 pièces / 2 chambres
Surface : 71,10m²
Localité : Tours (37000)
Référence : 37008-2770

Description du bien

TOURS CENTRE - Secteur HALLES

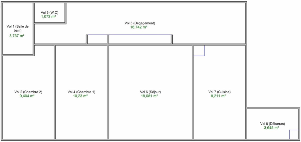
Au 2ème étage d'un immeuble en copropriété : APPARTEMENT T3 de 71,10m² loi carrez comprenant : entrée, dégagement avec placards, cuisine indépendante, cellier, séjour , 2 chambres, salle de bains et WC séparés.
Annexe : cave

Environnement calme à 10min en vélo de la Gare de TOURS
Proximité immédiate des commerces, écoles et transports en commun

- Caractéristiques techniques –

- Revêtement sol et mur refait à neuf
- Huisseries : simple vitrage
- Chauffage & Production d'eau chaude : gaz collectif
- Mise aux normes électrique récente
- Interphone - Fibre optique dans l'immeuble
- Exposition Est

- Copropriété –

- 60 lots principaux
- Charges annuelles moyennes 2525€ (eau et chauffage inclus)
- Aucune procédure en cours

Performance énergétique

logement extrêmement consommateur d’énergie logement très performant passoire énergétique kg CO /m².an ² consommation (énergie primaire) émissions kWh/m².an 277 43 *
43 kg CO /m².an ² * Dont émissions de gaz à effet de serre peu d’émissions de CO émissions de CO très importantes ² ²

Montant des dépenses théoriques annuelles d’énergie

Coût annuel (min) : 1360.00 €
Coût annuel (max) : 1870.00 €
Année de référence : 2021

Caractéristiques

Situation locative : libre
Nombre de salles de bain : 1

Commodités

Cave : oui

Mandat

Téléphone mandataire : +33674434500
E-mail mandataire : Veuillez utiliser le formulaire de contact ci-dessous ...
Négociateur : Jérémie MASSONNET

Cette annonce m'intéresse

Captcha
* Les champs suivis d'un astérisque sont obligatoires.

Conformément à la loi n°78-17 du 6 janvier 1978 modifiée relative à l'informatique, aux fichiers et aux libertés, et au règlement européen 2016/679, dit Règlement Général sur la Protection des Données (RGPD), vous disposez d'un droit d'accès, de rectification, de suppression des informations qui vous concernent.
Navigateur non pris en charge

Le navigateur Internet Explorer que vous utilisez actuellement ne permet pas d'afficher ce site web correctement.

Nous vous conseillons de télécharger et d'utiliser un navigateur plus récent et sûr tel que Google Chrome, Microsoft Edge, Mozilla Firefox, ou Safari (pour Mac) par exemple.
OK