Annonces immobilières

Toutes les annonces

Réseau des notaires

Vous êtes ici :
Nouvelle recherche Cette annonce m'intéresse

T3

Prix : 210 000,00 
Honoraires inclus à la charge du vendeur.
Type de bien : Appartement
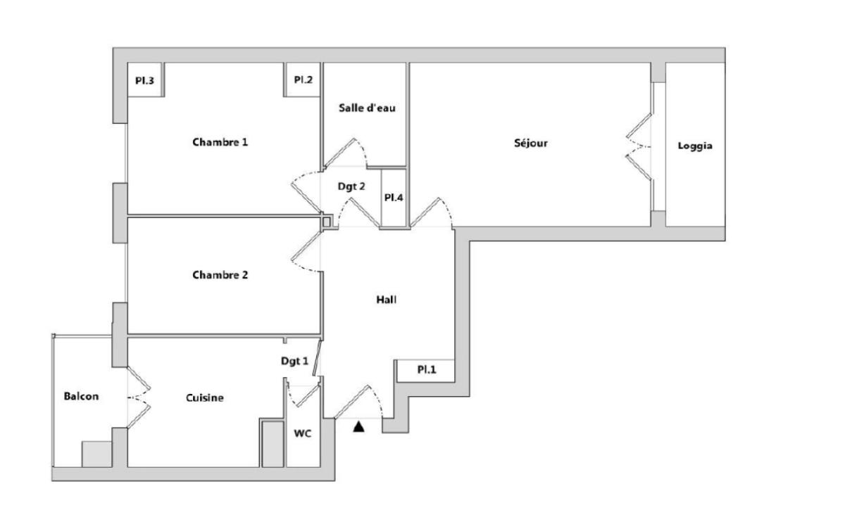
Pièces : 3 pièces / 2 chambres
Surface : 67,40m²
Localité : Villeurbanne (69100)
Référence : 01079-100

Description du bien

Découvrez cet appartement T3 au 3ème étage dans résidence avec ascenseur (rue Léon Blum). Bénéficiant d'une situation privilégiée, vous êtes à quelques pas seulement du Médipôle et de toutes les commodités.
La pièce de vie principale est un salon/séjour lumineux qui bénéficie d'un accès direct à un balcon, parfait pour profiter des beaux jours. La cuisine est séparée et prolongée par une loggia, offrant ainsi un espace fonctionnel et pratique.

L'espace nuit est composé de deux chambres. L'appartement dispose également d'une salle d'eau et d'un WC séparé. Pour un confort optimal dans ce secteur très demandé, ce bien est vendu avec deux garages privatif ainsi qu'un parking collectif.

Fenêtres double vitrage PVC.

La copropriété a récemment fait l'objet de travaux majeurs de rénovation, notamment la mise en place d'une Isolation Thermique par l'Extérieur (ITE). Ces travaux garantissent une excellente performance énergétique du bâtiment et contribuent à la maîtrise des charges de copropriété.
Parc pour enfants dans la résidence. Vue dégagée.
Charges de copropriété /trimestre: 640€.

Performance énergétique

logement extrêmement consommateur d’énergie logement très performant passoire énergétique kg CO /m².an ² consommation (énergie primaire) émissions kWh/m².an 120 6 *
6 kg CO /m².an ² * Dont émissions de gaz à effet de serre peu d’émissions de CO émissions de CO très importantes ² ²

Montant des dépenses théoriques annuelles d’énergie

Coût annuel (min) : 690.00 €
Coût annuel (max) : 990.00 €
Année de référence : 2021

Caractéristiques

Nombre d'étages : 6
État général : A rafraîchir
Situation locative : libre
Cuisine : oui
Nombre de balcons : 1

Commodités

Cave : oui

Mandat

Téléphone mandataire : +33633503348
E-mail mandataire : Veuillez utiliser le formulaire de contact ci-dessous ...
Négociateur : Cindy GONNOT

Cette annonce m'intéresse

Captcha
* Les champs suivis d'un astérisque sont obligatoires.

Conformément à la loi n°78-17 du 6 janvier 1978 modifiée relative à l'informatique, aux fichiers et aux libertés, et au règlement européen 2016/679, dit Règlement Général sur la Protection des Données (RGPD), vous disposez d'un droit d'accès, de rectification, de suppression des informations qui vous concernent.
Navigateur non pris en charge

Le navigateur Internet Explorer que vous utilisez actuellement ne permet pas d'afficher ce site web correctement.

Nous vous conseillons de télécharger et d'utiliser un navigateur plus récent et sûr tel que Google Chrome, Microsoft Edge, Mozilla Firefox, ou Safari (pour Mac) par exemple.
OK