Annonces immobilières

Toutes les annonces

Réseau des notaires

Nouvelle recherche Cette annonce m'intéresse

75006 Paris - Notre Dame des Champs - Appartement 67m² - 2 chambres - balcons

Prix : 1 095 750,00 
Dont honoraires 45 750,00 € TTC inclus (4,36 %) à la charge de l'acquéreur, soit 1 050 000 € hors honoraires.
Type de bien : Appartement
Pièces : 3 pièces / 2 chambres
Surface : 67,32m²
Localité : Paris 6e Arrondissement (75006)
Référence : 75070-43

Description du bien

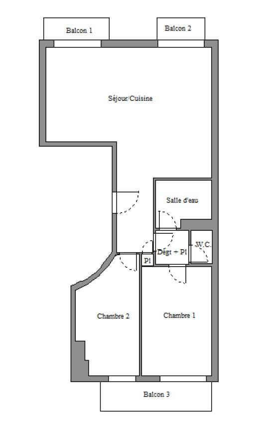
SOUS OFFRE. Situé dans un immeuble récent bien entretenu, nous vous proposons un bel appartement traversant de 67 m² en bon état au 5ème étage par ascenseur.
Il se compose d'une entrée, d'un double séjour exposé Ouest avec balcon, d'une cuisine semi-ouverte, de deux chambres (13 m² et 11m²) exposées Est avec leurs balcons, d'une salle de douche avec sa buanderie et de toilettes séparées.
Plan sans perte de place. Nombreux rangements. Double vitrage.
Une cave complète ce bien.

Performance énergétique

logement extrêmement consommateur d’énergie logement très performant passoire énergétique kg CO /m².an ² consommation (énergie primaire) émissions kWh/m².an 202 43 *
43 kg CO /m².an ² * Dont émissions de gaz à effet de serre peu d’émissions de CO émissions de CO très importantes ² ²

Montant des dépenses théoriques annuelles d’énergie

Coût annuel (min) : 1380.00 €
Coût annuel (max) : 1920.00 €
Année de référence : 2023

Caractéristiques

Nombre d'étages : 1
État général : Bon
Situation locative : libre
Cuisine : oui
Nombre de balcons : 1

Commodités

Cave : oui

Mandat

Téléphone mandataire : +33698666186
E-mail mandataire : Veuillez utiliser le formulaire de contact ci-dessous ...
Négociateur : Pierre-Emmanuel POULAIN

Cette annonce m'intéresse

Captcha
* Les champs suivis d'un astérisque sont obligatoires.

Conformément à la loi n°78-17 du 6 janvier 1978 modifiée relative à l'informatique, aux fichiers et aux libertés, et au règlement européen 2016/679, dit Règlement Général sur la Protection des Données (RGPD), vous disposez d'un droit d'accès, de rectification, de suppression des informations qui vous concernent.
Navigateur non pris en charge

Le navigateur Internet Explorer que vous utilisez actuellement ne permet pas d'afficher ce site web correctement.

Nous vous conseillons de télécharger et d'utiliser un navigateur plus récent et sûr tel que Google Chrome, Microsoft Edge, Mozilla Firefox, ou Safari (pour Mac) par exemple.
OK