Annonces immobilières

Toutes les annonces

Réseau des notaires

Nouvelle recherche Cette annonce m'intéresse

92100 BOULOGNE -APPARTEMENT 2/3 PIECES - BALCON - SANS VIS A VIS- A RAFRAICHIR

Prix : 452 400,00 
Dont honoraires 17 400,00 € TTC inclus (4,00 %) à la charge de l'acquéreur, soit 435 000 € hors honoraires.
Type de bien : Appartement
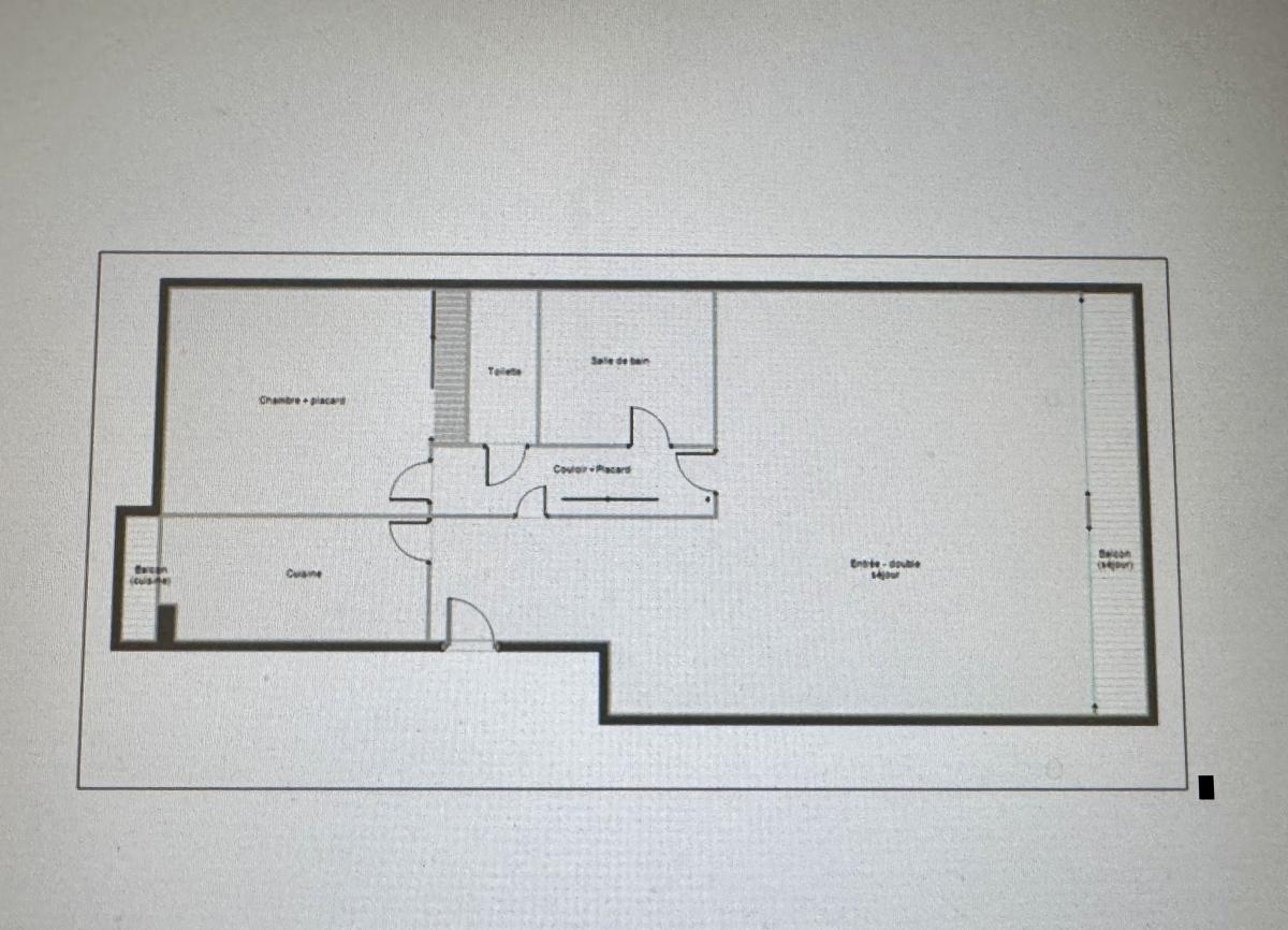
Pièces : 2 pièces / 1 chambre
Surface : 62,66m²
Localité : Boulogne-Billancourt (92100)
Référence : 92011-214

Description du bien

Notaire vend, au 9ème étage d'un immeuble en copropriété de 1960, cet appartement composé : d'un double séjour avec balcon offrant une vue dégagée sur la Seine et les collines de Meudon et Saint-Cloud, une chambre et la cuisine également sans vis à vis, une salle de douche, un wc indépendant et une cave
Possibilité d'acquérir un parking dans un immeuble voisin
Représentant 1192 tantièmes de la copropriété
Charges mensuelles : 330€ - TF : 919€
DPE C 121
"Les informations sur les risques auxquels ce bien est exposé sont disponibles sur le site Géorisques : georisques.gouv.fr."

Performance énergétique

logement extrêmement consommateur d’énergie logement très performant passoire énergétique kg CO /m².an ² consommation (énergie primaire) émissions kWh/m².an 121 15 *
15 kg CO /m².an ² * Dont émissions de gaz à effet de serre peu d’émissions de CO émissions de CO très importantes ² ²

Montant des dépenses théoriques annuelles d’énergie

Coût annuel (min) : 590.00 €
Coût annuel (max) : 840.00 €
Année de référence : 2023

Caractéristiques

Nombre d'étages : 1
État général : Bon
Situation locative : libre
Nombre de salles de bain : 1
Nombre de balcons : 1

Commodités

Cave : oui

Mandat

Téléphone mandataire : +33652943229
E-mail mandataire : Veuillez utiliser le formulaire de contact ci-dessous ...
Négociateur : Martine BOUCHE-FLORIN

Cette annonce m'intéresse

Captcha
* Les champs suivis d'un astérisque sont obligatoires.

Conformément à la loi n°78-17 du 6 janvier 1978 modifiée relative à l'informatique, aux fichiers et aux libertés, et au règlement européen 2016/679, dit Règlement Général sur la Protection des Données (RGPD), vous disposez d'un droit d'accès, de rectification, de suppression des informations qui vous concernent.
Navigateur non pris en charge

Le navigateur Internet Explorer que vous utilisez actuellement ne permet pas d'afficher ce site web correctement.

Nous vous conseillons de télécharger et d'utiliser un navigateur plus récent et sûr tel que Google Chrome, Microsoft Edge, Mozilla Firefox, ou Safari (pour Mac) par exemple.
OK