Annonces immobilières

Toutes les annonces

Réseau des notaires

Nouvelle recherche Cette annonce m'intéresse

Carré d’Or – Bas Gambetta : 2/3 Pièces avec terrasse, en étage élevé, à proximité de la mer.

Prix : 395 000,00 
Honoraires inclus à la charge du vendeur.
Type de bien : Appartement
Pièces : 2 pièces / 1 chambre
Surface : 55,05m²
Localité : Nice (06000)
Référence : 06049-412

Description du bien

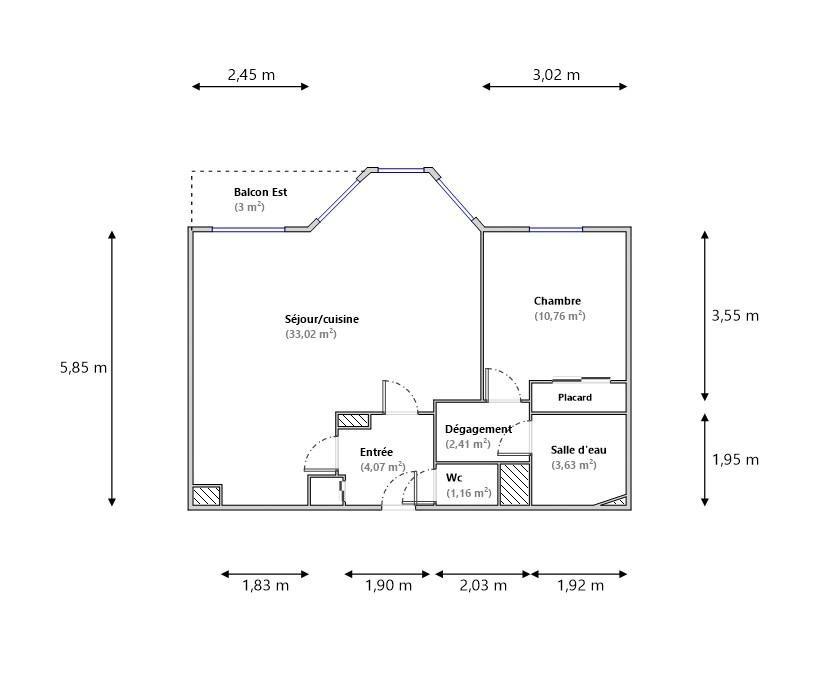
Carré d’Or – Bas Gambetta - 2/3 Pièces avec terrasse, en étage élevé, à proximité de la Promenade des Anglais

Situé au sixième étage d’une résidence récente, cet appartement présente une distribution fonctionnelle et bénéficie d’une terrasse au calme sur cour, offrant une vue dégagée.

L’agencement comprend une entrée desservant un double séjour prolongé par la terrasse et un espace cuisine ouvert entièrement aménagé et équipé.
La partie nuit se compose d’une chambre avec placard, d’une salle d’eau ainsi que de toilettes indépendantes.

Le bien dispose d’équipements actuels comprenant des menuiseries en double vitrage, une climatisation centralisée réversible et une douche à l’italienne de grande dimension. Une cave complète l’ensemble.

L’appartement bénéficie d’une situation privilégiée, à proximité immédiate de la Promenade des Anglais, de la station de tramway « Alsace-Lorraine » et des commerces du quartier.

Performance énergétique

logement extrêmement consommateur d’énergie logement très performant passoire énergétique kg CO /m².an ² consommation (énergie primaire) émissions kWh/m².an 114 3 *
3 kg CO /m².an ² * Dont émissions de gazà effet de serre peu d’émissions de CO émissions de COtrès importantes ² ²

Montant des dépenses théoriques annuelles d’énergie

Coût annuel (min) : 560.00 €
Coût annuel (max) : 820.00 €
Année de référence : 2022

Caractéristiques

Exposition : est
Cuisine : oui
Terrasse : oui

Commodités

Cave : oui

Mandat

Téléphone mandataire : +33664822968
E-mail mandataire : Veuillez utiliser le formulaire de contact ci-dessous ...
Négociateur : Alain QUACH

Cette annonce m'intéresse

Captcha
* Les champs suivis d'un astérisque sont obligatoires.

Conformément à la loi n°78-17 du 6 janvier 1978 modifiée relative à l'informatique, aux fichiers et aux libertés, et au règlement européen 2016/679, dit Règlement Général sur la Protection des Données (RGPD), vous disposez d'un droit d'accès, de rectification, de suppression des informations qui vous concernent.
Navigateur non pris en charge

Le navigateur Internet Explorer que vous utilisez actuellement ne permet pas d'afficher ce site web correctement.

Nous vous conseillons de télécharger et d'utiliser un navigateur plus récent et sûr tel que Google Chrome, Microsoft Edge, Mozilla Firefox, ou Safari (pour Mac) par exemple.
OK