Annonces immobilières

Toutes les annonces

Réseau des notaires

Nouvelle recherche Cette annonce m'intéresse

T3 vue tour Eiffel

Prix : 450 000,00 
Dont honoraires 20 000,00 € TTC inclus (4,65 %) à la charge de l'acquéreur, soit 430 000 € hors honoraires.
Type de bien : Appartement
Pièces : 2 pièces / 1 chambre
Surface : 45,38m²
Localité : Paris 15e Arrondissement (75015)
Référence : 75266-14

Description du bien

- - - APPARTEMENT VENDU LOUÉ - - -
1 rue de l'Amiral Roussin 75015 Paris
à 5 minutes du métro Cambronne / 8 minutes de La Motte Piquet - Grenelle
Dans un bel immeuble haussmannien, au 4ème étage d'une copropriété propre et bien entretenue, appartement de 2 pièces.
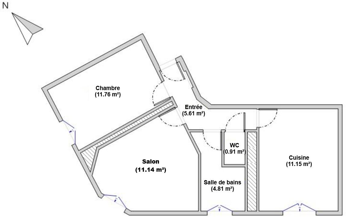
Ce bien est composé d'une entrée, d'une chambre, d'un séjour, d'une grande cuisine dînatoire, d'une salle de bains et d'un WC indépendant.
L'appartement nécessitera un rafraîchissement et une isolation (DPE G)
Vue dégagée sans vis-à-vis, vue tour Eiffel, fort potentiel.
L'appartement est vendu loué.
Date d'échéance du bail: 31/12/2026
Loyer actuel 981,83€ dont 75€ de charges locatives.

Performance énergétique

logement extrêmement consommateur d’énergie logement très performant kg CO /m².an ² consommation (énergie primaire) émissions kWh/m².an 440 14 *
14 kg CO /m².an ² * Dont émissions de gaz à effet de serre peu d’émissions de CO émissions de CO très importantes ² ²
Logement à consommation énergétique excessive

Montant des dépenses théoriques annuelles d’énergie

Coût annuel (min) : 1540.00 €
Coût annuel (max) : 2120.00 €
Année de référence : 2023

Caractéristiques

État général : A rénover
Situation locative : loué
Nombre de salles de bain : 1

Commodités

Cave : oui

Mandat

Téléphone mandataire : +33674356280
E-mail mandataire : Veuillez utiliser le formulaire de contact ci-dessous ...
Négociateur : Mark DARMON

Cette annonce m'intéresse

Captcha
* Les champs suivis d'un astérisque sont obligatoires.

Conformément à la loi n°78-17 du 6 janvier 1978 modifiée relative à l'informatique, aux fichiers et aux libertés, et au règlement européen 2016/679, dit Règlement Général sur la Protection des Données (RGPD), vous disposez d'un droit d'accès, de rectification, de suppression des informations qui vous concernent.
Navigateur non pris en charge

Le navigateur Internet Explorer que vous utilisez actuellement ne permet pas d'afficher ce site web correctement.

Nous vous conseillons de télécharger et d'utiliser un navigateur plus récent et sûr tel que Google Chrome, Microsoft Edge, Mozilla Firefox, ou Safari (pour Mac) par exemple.
OK