Puteaux - rue Arago.
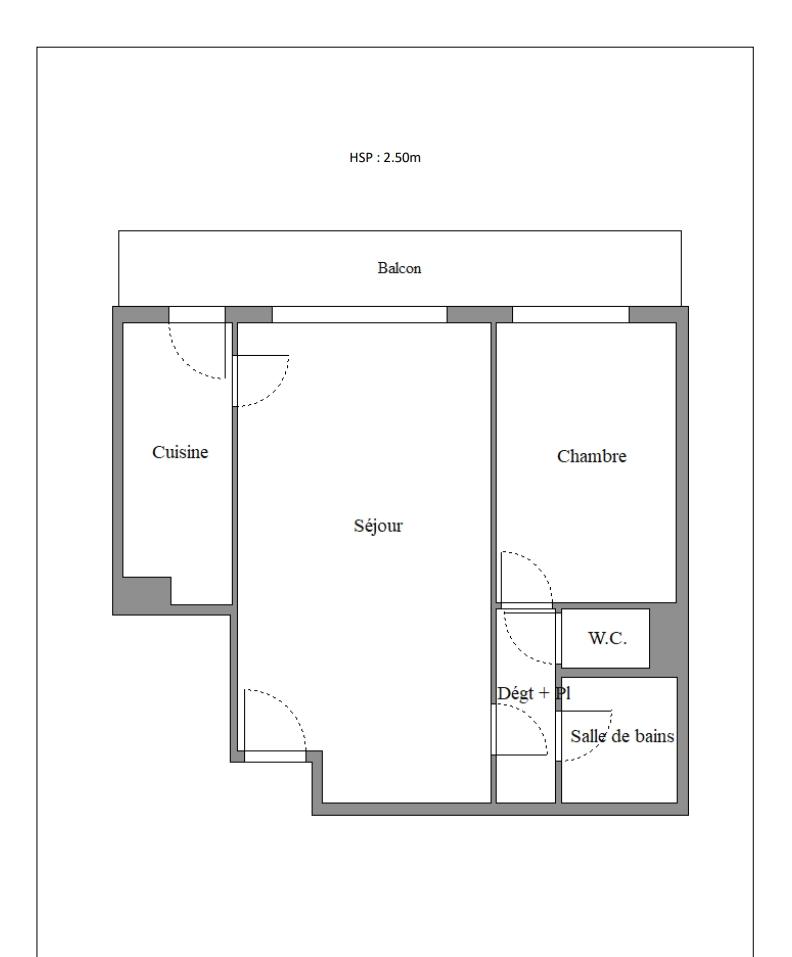
Situé au 5ᵉ étage d’un immeuble semi-récent de bon standing, bel appartement de deux pièces ouvrant sur un large balcon et bénéficiant d’une vue dégagée.
Il se compose d’une entrée, d’un séjour, d’une chambre, d’une salle de bains, de toilettes séparées et de placards.
Une cave et une place de parking couvert situées dans l’immeuble complètent l’ensemble.
Cet appartement, lumineux et calme, nécessite quelques travaux de rafraîchissement pour être remis au goût du jour. Il se situe au cœur d’un quartier résidentiel recherché, à proximité du centre-ville et des quais de Seine, bénéficiant d’une excellente desserte en transports en commun avec la gare de Puteaux (Tram T2 et ligne L du Transilien) à quelques minutes à pied, permettant de rejoindre La Défense ou Paris rapidement, et plusieurs lignes de bus complètent cette accessibilité, facilitant les déplacements quotidiens.
Performance énergétique
Caractéristiques
Nombre d'étages :
1
État général :
A rafraîchir
Situation locative :
libre
Cuisine :
oui
Nombre de salles de bain :
1
Nombre de balcons :
1
Parking :
oui
Commodités
Cave :
oui
Mandat
Téléphone mandataire :
+33663477140
E-mail mandataire :
Veuillez utiliser le formulaire de contact ci-dessous ...
Nous avons recours à des cookies techniques pour assurer le bon fonctionnement du site, nous utilisons également des cookies soumis à votre consentement pour collecter des statistiques de visite. Cliquez ci-dessous sur « ACCEPTER » pour accepter le dépôt de l'ensemble des cookies ou sur « CONFIGURER » pour choisir quels cookies nécessitant votre consentement seront déposés (cookies statistiques), avant de continuer votre visite du site. Plus d'informations