Annonces immobilières

Toutes les annonces

Réseau des notaires

Nouvelle recherche Cette annonce m'intéresse

LA BAULE STUDIO (av des Ibis)

Prix : 136 500,00 
Dont honoraires 6 500,00 € TTC inclus (5,00 %) à la charge de l'acquéreur, soit 130 000 € hors honoraires.
Type de bien : Appartement
Pièces : 1 pièce
Surface : 24,26m²
Localité : La Baule-Escoublac (44500)
Référence : 49055-87

Description du bien

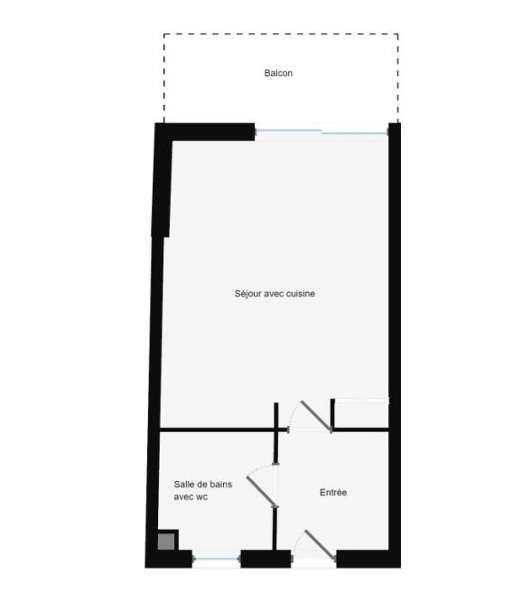
À vendre – 33 avenue des Ibis, La Baule
Situé au premier étage d’une résidence calme, ce studio se compose d’une entrée, d’un séjour avec espace cuisine ouvrant sur un balcon, ainsi que d’une salle d’eau avec WC.
L’appartement dispose également d’un emplacement de parking privatif et d’une cave, des annexes appréciables au quotidien.
Charges de copropriété : 197 € par trimestre.

Performance énergétique

logement extrêmement consommateur d’énergie logement très performant passoire énergétique kg CO /m².an ² consommation (énergie primaire) émissions kWh/m².an 252 9 *
9 kg CO /m².an ² * Dont émissions de gaz à effet de serre peu d’émissions de CO émissions de CO très importantes ² ²

Montant des dépenses théoriques annuelles d’énergie

Coût annuel (min) : 650.00 €
Coût annuel (max) : 940.00 €
Année de référence : 2022

Caractéristiques

Nombre d'étages : 3
État général : Bon
Nombre de balcons : 1

Commodités

Cave : oui

Mandat

Téléphone mandataire : +33687895015
E-mail mandataire : Veuillez utiliser le formulaire de contact ci-dessous ...
Négociateur : Nicolas MANCEAU

Cette annonce m'intéresse

Captcha
* Les champs suivis d'un astérisque sont obligatoires.

Conformément à la loi n°78-17 du 6 janvier 1978 modifiée relative à l'informatique, aux fichiers et aux libertés, et au règlement européen 2016/679, dit Règlement Général sur la Protection des Données (RGPD), vous disposez d'un droit d'accès, de rectification, de suppression des informations qui vous concernent.
Navigateur non pris en charge

Le navigateur Internet Explorer que vous utilisez actuellement ne permet pas d'afficher ce site web correctement.

Nous vous conseillons de télécharger et d'utiliser un navigateur plus récent et sûr tel que Google Chrome, Microsoft Edge, Mozilla Firefox, ou Safari (pour Mac) par exemple.
OK