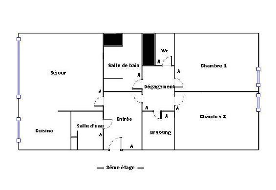
Situé rue Aristide Briant, à deux pas de la mairie de Levallois, se trouve cet appartement 3 pièces au 3ème étage avec ascenseur, d'une superficie de 66,46m2, traversant sur cour et sur rue.
Il se compose d'une entrée distribuant un séjour avec une cuisine ouverte, deux chambres avec dressing, une pièce dressing, une salle de bains avec toilette, une salle d'eau et un toilette séparé.
L'immeuble datant de 1964 et bien entretenu, et est géré par une gardienne.
Chauffage collectif gaz - SUD EST
Une cave complète ce bien.
Croquis en dernière photo
Performance énergétique
Logement à consommation énergétique excessive
Caractéristiques
État général :
Bon
Exposition :
sud-est
Nombre de salles de bain :
2
Commodités
Cave :
oui
Mandat
Téléphone mandataire :
+33682116687
E-mail mandataire :
Veuillez utiliser le formulaire de contact ci-dessous ...
Nous avons recours à des cookies techniques pour assurer le bon fonctionnement du site, nous utilisons également des cookies soumis à votre consentement pour collecter des statistiques de visite. Cliquez ci-dessous sur « ACCEPTER » pour accepter le dépôt de l'ensemble des cookies ou sur « CONFIGURER » pour choisir quels cookies nécessitant votre consentement seront déposés (cookies statistiques), avant de continuer votre visite du site. Plus d'informations