Annonces immobilières

Toutes les annonces

Réseau des notaires

Nouvelle recherche Cette annonce m'intéresse

Appartement T4 Centre bourg en duplex

Prix : 620,00 
Loyer par mois, hors charges.
Type de bien : Appartement
Pièces : 4 pièces / 2 chambres
Surface : 120,94m²
Localité : Coudray (53200)
Référence : 53073-L212

Description du bien

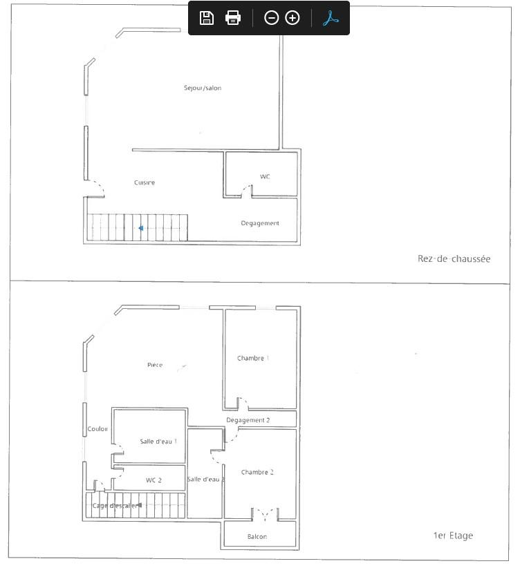
CENTRE BOURG - Appartement en duplex fraîchement rénové d'une surface habitable de 120,94 m² libre comprenant :
- Au rez-de-chaussée : Entrée donnant sur la rue sur cuisine aménagée et équipée (four, plaques à induction et hotte), avec départ escalier, dégagement, toilettes avec lave-mains, grand séjour avec trois grandes fenêtres
- A l’étage : palier, toilettes, salle d’eau aménagée, salon-salle de jeux, dégagement, chambre donnant sur rue et seconde chambre offrant salle d’eau privative aménagée avec douche à l’italienne + emplacement machine à laver avec baies ouvrant sur une terrasse extérieure couverte.

Performance énergétique

logement extrêmement consommateur d’énergie logement très performant passoire énergétique kg CO /m².an ² consommation (énergie primaire) émissions kWh/m².an 206 8 *
8 kg CO /m².an ² * Dont émissions de gaz à effet de serre peu d’émissions de CO émissions de CO très importantes ² ²

Montant des dépenses théoriques annuelles d’énergie

Coût annuel (min) : 2280.00 €
Coût annuel (max) : 3140.00 €
Année de référence : 2021

Caractéristiques

Nombre d'étages : 2
État général : Bon
Cuisine : oui
Terrasse : oui

Informations complémentaires

Charges annuelles : 0,00 €
Frais visite/dossier/bail locataire : 0,00 €
Frais état des lieux locataire : 0,00 €
Dépot de garantie: 620,00 €

Mandat

Téléphone mandataire : +33243079016
E-mail mandataire : Veuillez utiliser le formulaire de contact ci-dessous ...
Négociateur : Fabienne PELVEY

Cette annonce m'intéresse

Captcha
* Les champs suivis d'un astérisque sont obligatoires.

Conformément à la loi n°78-17 du 6 janvier 1978 modifiée relative à l'informatique, aux fichiers et aux libertés, et au règlement européen 2016/679, dit Règlement Général sur la Protection des Données (RGPD), vous disposez d'un droit d'accès, de rectification, de suppression des informations qui vous concernent.
Navigateur non pris en charge

Le navigateur Internet Explorer que vous utilisez actuellement ne permet pas d'afficher ce site web correctement.

Nous vous conseillons de télécharger et d'utiliser un navigateur plus récent et sûr tel que Google Chrome, Microsoft Edge, Mozilla Firefox, ou Safari (pour Mac) par exemple.
OK